Votre courriel a été envoyé.
90 Matheson Blvd W 2 920–25 530 pi² d'espace disponible • Bureau • 4 étoiles • Mississauga, ON L5R 3R3



Certaines informations ont été traduites automatiquement.
Tous les espaces disponibles(3)
Afficher les taux de location en
- Espace
- Taille
- Terme
- Taux de location
- Utilisation de l’espace
- Aménagement
- Disponible
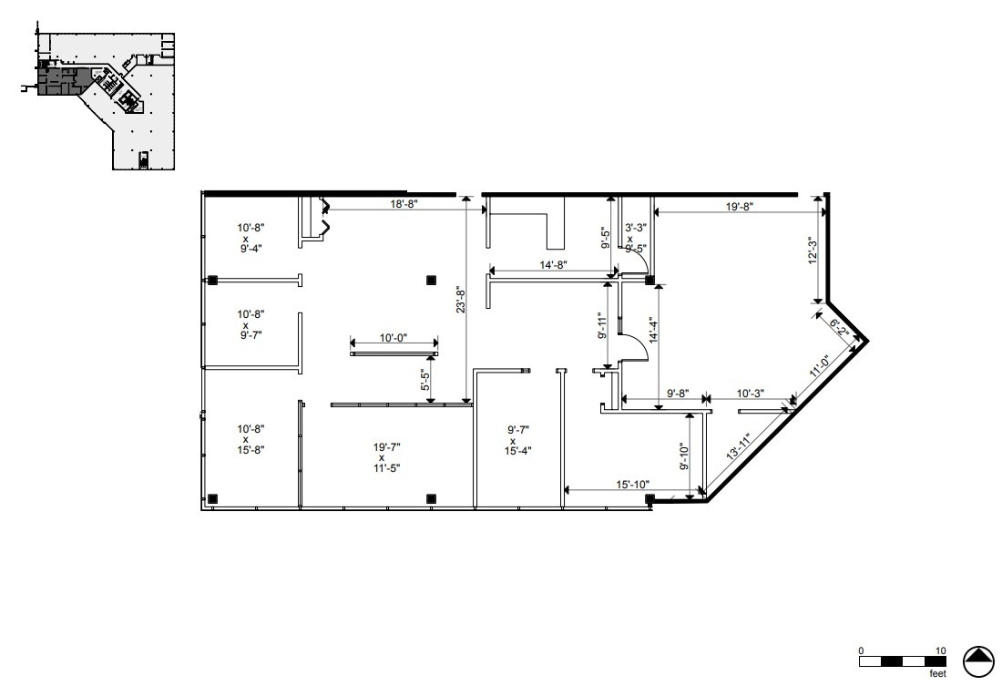
Une construction efficace avec des bureaux, un espace ouvert, une cuisine et une réception agréable
- Le taux de location ne comprend pas les services publics, les services de bâtiment ou les dépenses immobilières.
- Disposition du plan d’étage ouverte en général
- Espace en excellent état
- Aire de réception
- Entièrement construit comme Bureau standard
- Convient pour 8 à 24 personnes
- Air central et chauffage
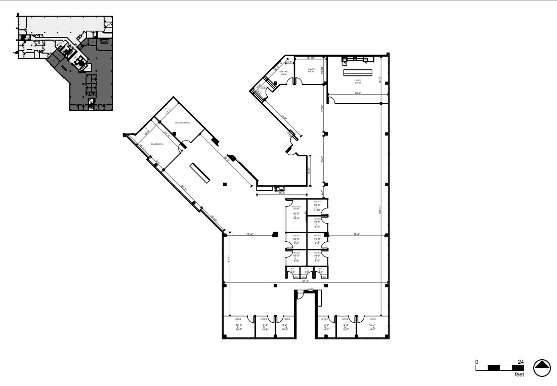
Espace bâti comprenant un grand espace ouvert, des bureaux privés, des salles de réunion, une salle de conférence et une cuisine. Espace lumineux avec une lumière naturelle abondante.
- Le taux de location ne comprend pas les services publics, les services de bâtiment ou les dépenses immobilières.
- Disposition du plan d’étage ouverte en général
- Air central et chauffage
- Entièrement construit comme Bureau standard
- Convient pour 42 à 134 personnes
- Plafond suspendu
Une construction efficace avec des bureaux, des salles de réunion, des aires ouvertes, une cuisine et une réception.
- Le taux de location ne comprend pas les services publics, les services de bâtiment ou les dépenses immobilières.
- Convient pour 20 à 30 personnes
- Air central et chauffage
- Disposition du plan d’étage ouverte
- 1 salle de conférence
- Aire de réception
| Espace | Taille | Terme | Taux de location | Utilisation de l’espace | Aménagement | Disponible |
| 2e étage, ste 202 | 2 920 pi² | 1-10 ans | 19,50 $ CAD/pi²/an 1,63 $ CAD/pi²/mois 56 940 $ CAD/an 4 745 $ CAD/mois | Bureau | construction complète | Maintenant |
| 3e étage, ste 350 | 16 684 pi² | Négociable | 19,50 $ CAD/pi²/an 1,63 $ CAD/pi²/mois 325 338 $ CAD/an 27 112 $ CAD/mois | Bureau | construction complète | 2027-03-01 |
| 4e étage, ste 410 | 5 926 pi² | 5-10 ans | 19,50 $ CAD/pi²/an 1,63 $ CAD/pi²/mois 115 557 $ CAD/an 9 630 $ CAD/mois | Bureau | construction complète | 2026-11-01 |
2e étage, ste 202
| Taille |
| 2 920 pi² |
| Terme |
| 1-10 ans |
| Taux de location |
| 19,50 $ CAD/pi²/an 1,63 $ CAD/pi²/mois 56 940 $ CAD/an 4 745 $ CAD/mois |
| Utilisation de l’espace |
| Bureau |
| Aménagement |
| construction complète |
| Disponible |
| Maintenant |
3e étage, ste 350
| Taille |
| 16 684 pi² |
| Terme |
| Négociable |
| Taux de location |
| 19,50 $ CAD/pi²/an 1,63 $ CAD/pi²/mois 325 338 $ CAD/an 27 112 $ CAD/mois |
| Utilisation de l’espace |
| Bureau |
| Aménagement |
| construction complète |
| Disponible |
| 2027-03-01 |
4e étage, ste 410
| Taille |
| 5 926 pi² |
| Terme |
| 5-10 ans |
| Taux de location |
| 19,50 $ CAD/pi²/an 1,63 $ CAD/pi²/mois 115 557 $ CAD/an 9 630 $ CAD/mois |
| Utilisation de l’espace |
| Bureau |
| Aménagement |
| construction complète |
| Disponible |
| 2026-11-01 |
2e étage, ste 202
| Taille | 2 920 pi² |
| Terme | 1-10 ans |
| Taux de location | 19,50 $ CAD/pi²/an |
| Utilisation de l’espace | Bureau |
| Aménagement | construction complète |
| Disponible | Maintenant |
Une construction efficace avec des bureaux, un espace ouvert, une cuisine et une réception agréable
- Le taux de location ne comprend pas les services publics, les services de bâtiment ou les dépenses immobilières.
- Entièrement construit comme Bureau standard
- Disposition du plan d’étage ouverte en général
- Convient pour 8 à 24 personnes
- Espace en excellent état
- Air central et chauffage
- Aire de réception
3e étage, ste 350
| Taille | 16 684 pi² |
| Terme | Négociable |
| Taux de location | 19,50 $ CAD/pi²/an |
| Utilisation de l’espace | Bureau |
| Aménagement | construction complète |
| Disponible | 2027-03-01 |
Espace bâti comprenant un grand espace ouvert, des bureaux privés, des salles de réunion, une salle de conférence et une cuisine. Espace lumineux avec une lumière naturelle abondante.
- Le taux de location ne comprend pas les services publics, les services de bâtiment ou les dépenses immobilières.
- Entièrement construit comme Bureau standard
- Disposition du plan d’étage ouverte en général
- Convient pour 42 à 134 personnes
- Air central et chauffage
- Plafond suspendu
4e étage, ste 410
| Taille | 5 926 pi² |
| Terme | 5-10 ans |
| Taux de location | 19,50 $ CAD/pi²/an |
| Utilisation de l’espace | Bureau |
| Aménagement | construction complète |
| Disponible | 2026-11-01 |
Une construction efficace avec des bureaux, des salles de réunion, des aires ouvertes, une cuisine et une réception.
- Le taux de location ne comprend pas les services publics, les services de bâtiment ou les dépenses immobilières.
- Disposition du plan d’étage ouverte
- Convient pour 20 à 30 personnes
- 1 salle de conférence
- Air central et chauffage
- Aire de réception
Aperçu de la propriété
90 & 110 Matheson Boulevard W et 100 Milverton Drive est un complexe relié de 3 bâtiments qui offre le mélange parfait d'espaces de bureaux des options, des commodités et des commodités créant une expérience de travail inégalée. Le complexe de classe A comprend un service de restauration sur place, un parking, des zones de collaboration et une garderie. Les bâtiments de la série Balance du campus Heartland offrent tout ce dont vous avez besoin pour concilier vie professionnelle et vie personnelle.
- Accès 24 heures
- Atrium
- Ligne d'autobus
- Garderie
- Service d'alimentation
- Gestionnaire d'immeuble sur place
- Système de sécurité
- Affichage
- Réception
- Réception
- Wi-Fi
Faits sur la propriété
Présenté par
90 Matheson Blvd W
Hmm, il semble y avoir eu une erreur lors de l’envoi de votre message. Veuillez réessayer.
Merci! Votre message a été envoyé.



