Votre courriel a été envoyé.
36 Toronto St 2 387 pi² d'espace disponible • Bureau • 4 étoiles • Toronto, ON M5C 1J4



Certaines informations ont été traduites automatiquement.
Faits saillants de la sous-location
- Espace de bureau professionnel entièrement aménagé, prêt à emménager
- Des fenêtres de périmètre étendues offrant une lumière naturelle abondante
- Combinaison de bureaux privés, grande salle de conférence et espace de travail ouvert
- Aménagement efficace combinant bureaux individuels et espaces de travail collaboratifs
Tous les espaces disponibles(1)
Afficher les taux de location en
- Espace
- Taille
- Terme
- Taux de location
- Utilisation de l’espace
- Aménagement
- Disponible
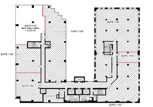
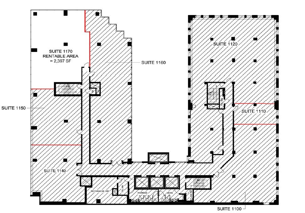
Le 36 Toronto Street offre une suite de bureaux de 2 397 pieds carrés disponible en sous-location au centre-ville de Toronto. La durée de la sous-location s'étend jusqu'au 29 novembre 2027. La suite comprend des bureaux privés, une salle de conférence, des espaces de travail ouverts et une kitchenette. Le loyer supplémentaire est estimé à 27,73$ FPS pour 2026. La disponibilité est immédiate.
- Espace de sous-location disponible auprès du locataire actuel
- Disposition du plan d’étage ouverte en général
- Entièrement construit comme Bureau standard
- Convient pour 6 à 20 personnes
| Espace | Taille | Terme | Taux de location | Utilisation de l’espace | Aménagement | Disponible |
| 11e étage, ste 1170 | 2 387 pi² | Nov. 2027 | Sur demande Sur demande Sur demande Sur demande | Bureau | construction complète | 30 jours |
11e étage, ste 1170
| Taille |
| 2 387 pi² |
| Terme |
| Nov. 2027 |
| Taux de location |
| Sur demande Sur demande Sur demande Sur demande |
| Utilisation de l’espace |
| Bureau |
| Aménagement |
| construction complète |
| Disponible |
| 30 jours |
11e étage, ste 1170
| Taille | 2 387 pi² |
| Terme | Nov. 2027 |
| Taux de location | Sur demande |
| Utilisation de l’espace | Bureau |
| Aménagement | construction complète |
| Disponible | 30 jours |
Le 36 Toronto Street offre une suite de bureaux de 2 397 pieds carrés disponible en sous-location au centre-ville de Toronto. La durée de la sous-location s'étend jusqu'au 29 novembre 2027. La suite comprend des bureaux privés, une salle de conférence, des espaces de travail ouverts et une kitchenette. Le loyer supplémentaire est estimé à 27,73$ FPS pour 2026. La disponibilité est immédiate.
- Espace de sous-location disponible auprès du locataire actuel
- Entièrement construit comme Bureau standard
- Disposition du plan d’étage ouverte en général
- Convient pour 6 à 20 personnes
Aperçu de la propriété
Positionné pour l'accessibilité et la commodité, le 36 Toronto Street place les locataires à proximité des principales institutions financières, des options de transport en commun et des commodités environnantes dans le cœur dynamique de Toronto.
- Atrium
- Ligne d'autobus
- Train de banlieue
- Nettoyeur à sec
- Service d'alimentation
- Métro
- Système de sécurité
Faits sur la propriété
Sélectionner des locataires
- Étage
- Nom du locataire
- Secteur
- 1ᵉʳ
- Bar Goa
- Hébergement et services alimentaires
- 2ᵉ
- BSäR Management Group Inc.
- Construction
- 1ᵉʳ
- Canada Post
- Transport et entreposage
- 9ᵉ
- Clarke Child & Family Law
- Services professionnels, scientifiques et techniques
- 10ᵉ
- FCA Insurance Brokers
- Finance et assurances
- 5ᵉ
- Harbour Equity
- Finance et assurances
- 8ᵉ
- Regus
- Immobilier
- 9ᵉ
- Robinsons Law
- Services professionnels, scientifiques et techniques
- 4ᵉ
- Veeva Systems Inc.
- Information
- 10ᵉ
- Welch LLP
- Services professionnels, scientifiques et techniques
Présenté par
36 Toronto St
Hmm, il semble y avoir eu une erreur lors de l’envoi de votre message. Veuillez réessayer.
Merci! Votre message a été envoyé.



