Votre courriel a été envoyé.
4838 Richard Rd SW 26 587 pi² d'espace disponible • Bureau • 4 étoiles • Calgary, AB T3E 6L1



Certaines informations ont été traduites automatiquement.
Faits saillants
- Classe A, Immeuble à bureaux moderne situé sur le campus corporatif de WestMount.
- Accès facile au centre-ville de Calgary.
- À proximité de Marda Loop, du Collège Mount Royal et de Garrison Woods.
Tous les espaces disponibles(1)
Afficher les taux de location en
- Espace
- Taille
- Terme
- Taux de location
- Utilisation de l’espace
- Aménagement
- Disponible
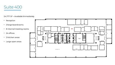
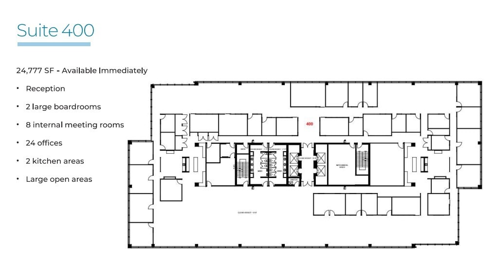
Possibilité d'étage complet comprenant une réception, une cuisine, 2 grandes salles de réunion, 27 bureaux, une station de copie et de grands espaces ouverts. Sous réserve de droit de premier refus. Disponible maintenant.
- Le taux de location ne comprend pas les services publics, les services de bâtiment ou les dépenses immobilières.
- Disposition du plan d’étage ouverte en général
- 2 salles de conférence
- Aire de réception
- Salle de bains privée
- Lumière naturelle
- Nouvel espace au design moderne.
- Espace cuisine.
- Entièrement construit comme Bureau standard
- 27 bureaux privés
- Espace en excellent état
- Cuisine
- Système de sécurité
- Éclairage d’urgence
- Lumière naturelle abondante.
| Espace | Taille | Terme | Taux de location | Utilisation de l’espace | Aménagement | Disponible |
| 4e étage, ste 400 | 26 587 pi² | 1-10 ans | Sur demande Sur demande Sur demande Sur demande | Bureau | construction complète | Maintenant |
4e étage, ste 400
| Taille |
| 26 587 pi² |
| Terme |
| 1-10 ans |
| Taux de location |
| Sur demande Sur demande Sur demande Sur demande |
| Utilisation de l’espace |
| Bureau |
| Aménagement |
| construction complète |
| Disponible |
| Maintenant |
4e étage, ste 400
| Taille | 26 587 pi² |
| Terme | 1-10 ans |
| Taux de location | Sur demande |
| Utilisation de l’espace | Bureau |
| Aménagement | construction complète |
| Disponible | Maintenant |
Possibilité d'étage complet comprenant une réception, une cuisine, 2 grandes salles de réunion, 27 bureaux, une station de copie et de grands espaces ouverts. Sous réserve de droit de premier refus. Disponible maintenant.
- Le taux de location ne comprend pas les services publics, les services de bâtiment ou les dépenses immobilières.
- Entièrement construit comme Bureau standard
- Disposition du plan d’étage ouverte en général
- 27 bureaux privés
- 2 salles de conférence
- Espace en excellent état
- Aire de réception
- Cuisine
- Salle de bains privée
- Système de sécurité
- Lumière naturelle
- Éclairage d’urgence
- Nouvel espace au design moderne.
- Lumière naturelle abondante.
- Espace cuisine.
Aperçu de la propriété
Situé au sud-ouest du chemin Richard et à la porte Mount Royal SW. WestMount Corporate Campus est le parc à bureaux de premier plan de Calgary. Ce projet de construction de 26 acres comprendra plus de 750 000 pieds carrés de locaux à bureaux de classe A. WestMount Corporate Campus offre la vitalité, l'énergie et la diversité d'un cadre de style campus dans un endroit enviable en banlieue. Situé à proximité de Marda Loop, Mount Royal College et Garrison Woods, avec un accès pratique au centre-ville, cet emplacement offre à parts égales la tranquillité suburbaine et la connexion urbaine. WestMount Corporate Campus comprendra cinq immeubles à bureaux et environ 10 000 pieds carrés de commerces de détail. Ce parc à bureaux saisissant comprend également un aménagement paysager complet avec des aires de repos extérieures. Le stationnement abondant au-dessus et au-dessous du niveau ainsi que la proximité des principales lignes d'autobus de Calgary Transit offrent des options efficaces pour les déplacements quotidiens des employés. Situé sur la 50e Avenue entre Crowchild Trail et Richard Road, WestMount Corporate Campus est un point de repère à haute visibilité, idéal pour les entreprises qui veulent profiter de la meilleure adresse de banlieue que Calgary a à offrir.
- Ligne d'autobus
- Accès contrôlé
- Système de sécurité
- Éclairage accentué
- Station de recharge de voiture
- Détecteur de fumée
- Agents de sécurité sur place
Faits sur la propriété
Présenté par
4838 Richard Rd SW
Hmm, il semble y avoir eu une erreur lors de l’envoi de votre message. Veuillez réessayer.
Merci! Votre message a été envoyé.



