Se Connecter/S’inscrire
Votre courriel a été envoyé.
10155 114th St NW
Edmonton, AB T5K 1R8
B & H Tower · Bureau Propriété À vendre


Certaines informations ont été traduites automatiquement.
Faits saillants de l'investissement
- Façades.
- Situé dans un grand quartier résidentiel.
- Emplacement central.
Résumé de l'annonce
Situé dans une grande zone résidentielle.
1 Unité disponible
Unité 100
| Taille de l’unité | 4 905 pi² | Type de vente | Investissement |
| Utilisation du condo | Bureau |
| Taille de l’unité | 4 905 pi² |
| Utilisation du condo | Bureau |
| Type de vente | Investissement |
Description
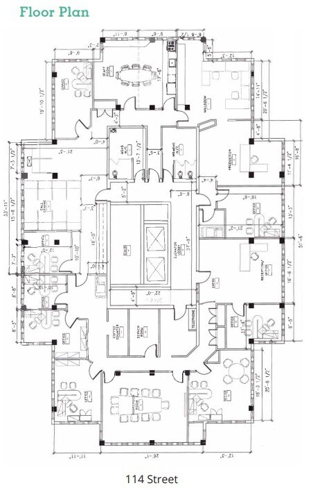
Deuxième étage. 4 places de stationnement en surface.
Notes sur la vente
Espace de bureau professionnel aménagé.
Floor Plan
1 de 1
Vidéos
Visite extérieure 3D Matterport
Visite 3D Matterport
Photos
Vue depuis la rue
Rue
Carte
Faits sur la propriété
Les caractéristiques suivantes s'appliquent à l'ensemble du bâtiment. Les détails relatifs aux unités de copropriété individuelles peuvent varier et figurent dans les informations concernant les unités ci-dessus.
| Taille totale du bâtiment | 67 969 pi² | Superficie de plancher typique | 5 431 pi² |
| Type de propriété | Immeuble residentiel (Condo) | Année de construction | 1980 |
| Sous-type de propriété | Appartement | Taille du lot | 1,56 AC |
| Classe d’immeuble | C | Ratio de stationnement | 3,68/1 000 pi² |
| Planchers | 11 | ||
| Zonage | RA9 | ||
| Taille totale du bâtiment | 67 969 pi² |
| Type de propriété | Immeuble residentiel (Condo) |
| Sous-type de propriété | Appartement |
| Classe d’immeuble | C |
| Planchers | 11 |
| Superficie de plancher typique | 5 431 pi² |
| Année de construction | 1980 |
| Taille du lot | 1,56 AC |
| Ratio de stationnement | 3,68/1 000 pi² |
| Zonage | RA9 |
Unité renseignements sur le mélange
| Description | Nombre d’unités | Loyer moyen/mois | pi² |
|---|---|---|---|
| 1+1 | 36 | - | - |
1 de 6
Vidéos
Visite extérieure 3D Matterport
Visite 3D Matterport
Photos
Vue depuis la rue
Rue
Carte

