Your email has been sent.
10180 101 St NW
Edmonton, AB T5J 3S4
National Bank Centre / Manulife Place · Office Property For Lease
·
111,833 SF


Highlights
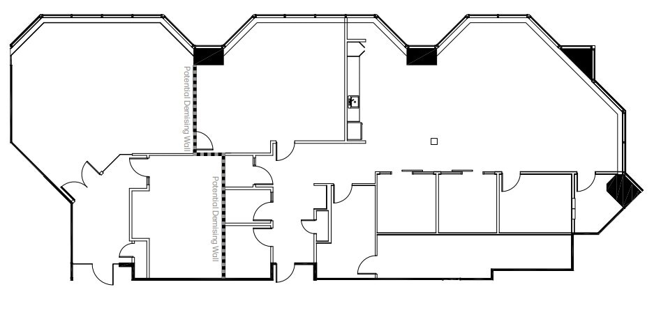
- Landmark opportunity with up to 100,000 SF contiguously
Property Overview
Standing at the southwest corner of 102 Avenue and 101 Street NW, Manulife Place is an iconic asset in the heart of Downtown Edmonton. Surrounded by a strong office community, a wealth of trendy shops and restaurants with unparalleled transit accessibility and direct pedway access, Manulife Place is the premier destination for retail, entertainment and work in Edmonton. Our offices are designed with your success in mind. With customizable floor plans and flexible leasing options, our office spaces can accommodate businesses of all sizes and types.
- Atrium
- Bus Line
- Convenience Store
- Food Court
- Metro/Subway
- Property Manager on Site
- Restaurant
- Signage
Property Facts
Sustainability
Sustainability
LEED Certification Led by the Canada Green Building Council (CAGBC), the Leadership in Energy and Environmental Design (LEED) is a green building certification program focused on the design, construction, operation, and maintenance of green buildings, homes, and neighborhoods, which aims to help building owners and operators be environmentally responsible and use resources efficiently. LEED certification is a globally recognized symbol of sustainability achievement and leadership. To achieve LEED certification, a project earns points by adhering to prerequisites and credits that address carbon, energy, water, waste, transportation, materials, health and indoor environmental quality. Projects go through a verification and review process and are awarded points that correspond to a level of LEED certification: Platinum (80+ points) Gold (60-79 points) Silver (50-59 points) Certified (40-49 points)
