Log In/Sign Up
Your email has been sent.
140 8th Ave SW
Calgary, AB T2P 1M9
Bank of Montreal Historic Building · Office Property For Lease
·
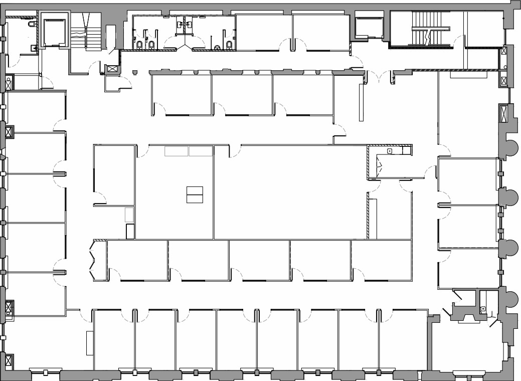
24,402 SF


Highlights
- Character Architectural Details
- Prominent Stephen Ave Location
- Surrounded by Amenities
Property Overview
Iconic Heritage Building
Property Facts
Building Type
Office
Year Built/Renovated
1931/2012
Building Height
4 Stories
Building Size
42,610 SF
Building Class
C
Typical Floor Size
10,652 SF
1 of 3
Videos
Matterport 3D Exterior
Matterport 3D Tour
Photos
Street View
Street
Map
