Your email has been sent.
Britannia Crossing 5113-5139 Elbow Dr SW 3,297 - 11,326 SF of Office Space Available in Calgary, AB T2V 1V3



Highlights
- High accessibility of transit service
- LEED certified building
- Community urban design renewal, including desirable boutique offices and retail spaces
All Available Spaces(3)
Display Rental Rate as
- Space
- Size
- Term
- Rental Rate
- Space Use
- Build-Out
- Available
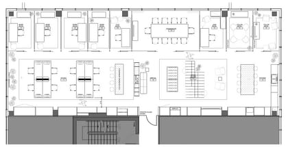
Located on the 4th floor of a LEED certified building. Britannia Crossing is a sought after location. Full office build out, high end premium finishes with a mix of private offices, open work station areas, board room, full kitchen with island, built in oven and stove top with exclusive south facing outdoor patio. Access to common area washrooms on same floor and access to bike room and shower facilities on P1 level.
- Fully Built-Out as Standard Office
- 2 Conference Rooms
- Space is in Excellent Condition
- Central Air Conditioning
- Balcony
- Bicycle Storage
- Full working kitchen with island
- Large Reception & Waiting Area
- Open plan and private offices with break-out area
- 6 Private Offices
- 6 Workstations
- Plug & Play
- Reception Area
- Natural Light
- Common Parts WC Facilities
- Full working kitchen with island
- Premium build-out
- Private boardroom and open collaboration area
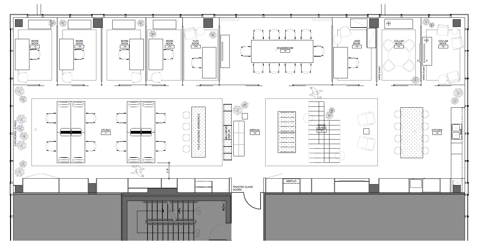
Premium Office Space - Experience an elevated workplace in this beautiful, modern, move-in ready office featuring sophisticated, high-end finishes throughout. Designed for functionality and comfort, the space includes eight private offices, a spacious boardroom, and an open work area accommodating up to 10 workstations or 8 plus a collaborative breakout zone for team engagement. A stylish lounge area and kitchenette with an island seating up to eight create the perfect space for informal meetings or lunch gatherings. Common area washrooms are conveniently located for shared use. Situated in a Class A, LEED-certified building within a sought-after neighbourhood, this office offers easy access to premium amenities, including top-rated cafes, restaurants, and meeting spot, ideal for client lunches and business networking. A tour is highly recommended to fully appreciate the quality, design, and atmosphere of this exceptional workspace.
- Fully Built-Out as Standard Office
- 8 Private Offices
- 10 Workstations
- Central Air Conditioning
- Corner Space
- Bicycle Storage
- Shower Facilities
- Open-Plan
- Full office build-out
- Mostly Open Floor Plan Layout
- 1 Conference Room
- Space is in Excellent Condition
- Closed Circuit Television Monitoring (CCTV)
- Natural Light
- Emergency Lighting
- Common Parts WC Facilities
- Move-in ready
- Modern finishes
Available September 1, 2025, this beautifully furnished, high-end office suite offers a functional layout with 8 private offices featuring whiteboard and magnetic wall systems, plus an open area with 2 workstations and a dedicated copy/print zone. Enjoy direct elevator access into an impressive reception and waiting area, with access to 3 shared boardrooms, a shared lounge, and a fully equipped kitchen. Additional highlights include: In-suite gym with washrooms and showers Access to bike room, lockers, and change rooms on the P1 level Heated underground parking available for rent Located in a LEED-certified building A tour is highly recommended. Contact us today for more information or to schedule a viewing.
- Fully Built-Out as Standard Office
- 3 Conference Rooms
- Space is in Excellent Condition
- Balcony
- High Ceilings
- Shower Facilities
- Built-out move-in ready
- Employee lounge area with balcony & BBQ
- Highly sought after location
- Office intensive layout
- 2 Workstations
- Central Air Conditioning
- Private Restrooms
- Bicycle Storage
- Fully equipped kitchen
- High-end finishes
- LEED Certified building
| Space | Size | Term | Rental Rate | Space Use | Build-Out | Available |
| 4th Floor, Ste 420 | 4,010 SF | 5-10 Years | Upon Request Upon Request Upon Request Upon Request | Office | Full Build-Out | Now |
| 4th Floor, Ste 460 | 3,297 SF | 5-10 Years | Upon Request Upon Request Upon Request Upon Request | Office | Full Build-Out | 2026-06-01 |
| 5th Floor, Ste 500 | 4,019 SF | Negotiable | Upon Request Upon Request Upon Request Upon Request | Office | Full Build-Out | Now |
4th Floor, Ste 420
| Size |
| 4,010 SF |
| Term |
| 5-10 Years |
| Rental Rate |
| Upon Request Upon Request Upon Request Upon Request |
| Space Use |
| Office |
| Build-Out |
| Full Build-Out |
| Available |
| Now |
4th Floor, Ste 460
| Size |
| 3,297 SF |
| Term |
| 5-10 Years |
| Rental Rate |
| Upon Request Upon Request Upon Request Upon Request |
| Space Use |
| Office |
| Build-Out |
| Full Build-Out |
| Available |
| 2026-06-01 |
5th Floor, Ste 500
| Size |
| 4,019 SF |
| Term |
| Negotiable |
| Rental Rate |
| Upon Request Upon Request Upon Request Upon Request |
| Space Use |
| Office |
| Build-Out |
| Full Build-Out |
| Available |
| Now |
4th Floor, Ste 420
| Size | 4,010 SF |
| Term | 5-10 Years |
| Rental Rate | Upon Request |
| Space Use | Office |
| Build-Out | Full Build-Out |
| Available | Now |
Located on the 4th floor of a LEED certified building. Britannia Crossing is a sought after location. Full office build out, high end premium finishes with a mix of private offices, open work station areas, board room, full kitchen with island, built in oven and stove top with exclusive south facing outdoor patio. Access to common area washrooms on same floor and access to bike room and shower facilities on P1 level.
- Fully Built-Out as Standard Office
- 6 Private Offices
- 2 Conference Rooms
- 6 Workstations
- Space is in Excellent Condition
- Plug & Play
- Central Air Conditioning
- Reception Area
- Balcony
- Natural Light
- Bicycle Storage
- Common Parts WC Facilities
- Full working kitchen with island
- Full working kitchen with island
- Large Reception & Waiting Area
- Premium build-out
- Open plan and private offices with break-out area
- Private boardroom and open collaboration area
4th Floor, Ste 460
| Size | 3,297 SF |
| Term | 5-10 Years |
| Rental Rate | Upon Request |
| Space Use | Office |
| Build-Out | Full Build-Out |
| Available | 2026-06-01 |
Premium Office Space - Experience an elevated workplace in this beautiful, modern, move-in ready office featuring sophisticated, high-end finishes throughout. Designed for functionality and comfort, the space includes eight private offices, a spacious boardroom, and an open work area accommodating up to 10 workstations or 8 plus a collaborative breakout zone for team engagement. A stylish lounge area and kitchenette with an island seating up to eight create the perfect space for informal meetings or lunch gatherings. Common area washrooms are conveniently located for shared use. Situated in a Class A, LEED-certified building within a sought-after neighbourhood, this office offers easy access to premium amenities, including top-rated cafes, restaurants, and meeting spot, ideal for client lunches and business networking. A tour is highly recommended to fully appreciate the quality, design, and atmosphere of this exceptional workspace.
- Fully Built-Out as Standard Office
- Mostly Open Floor Plan Layout
- 8 Private Offices
- 1 Conference Room
- 10 Workstations
- Space is in Excellent Condition
- Central Air Conditioning
- Closed Circuit Television Monitoring (CCTV)
- Corner Space
- Natural Light
- Bicycle Storage
- Emergency Lighting
- Shower Facilities
- Common Parts WC Facilities
- Open-Plan
- Move-in ready
- Full office build-out
- Modern finishes
5th Floor, Ste 500
| Size | 4,019 SF |
| Term | Negotiable |
| Rental Rate | Upon Request |
| Space Use | Office |
| Build-Out | Full Build-Out |
| Available | Now |
Available September 1, 2025, this beautifully furnished, high-end office suite offers a functional layout with 8 private offices featuring whiteboard and magnetic wall systems, plus an open area with 2 workstations and a dedicated copy/print zone. Enjoy direct elevator access into an impressive reception and waiting area, with access to 3 shared boardrooms, a shared lounge, and a fully equipped kitchen. Additional highlights include: In-suite gym with washrooms and showers Access to bike room, lockers, and change rooms on the P1 level Heated underground parking available for rent Located in a LEED-certified building A tour is highly recommended. Contact us today for more information or to schedule a viewing.
- Fully Built-Out as Standard Office
- Office intensive layout
- 3 Conference Rooms
- 2 Workstations
- Space is in Excellent Condition
- Central Air Conditioning
- Balcony
- Private Restrooms
- High Ceilings
- Bicycle Storage
- Shower Facilities
- Fully equipped kitchen
- Built-out move-in ready
- High-end finishes
- Employee lounge area with balcony & BBQ
- LEED Certified building
- Highly sought after location
Property Overview
Britannia Crossing is a five storey, mixed use, boutique commercial development located in a prestigious community on a prominent high exposure corner of Elbow Drive and 50th Avenue SW. This location boasts great visibility and a pedestrian friendly high traffic area with numerous amenities nearby and only minutes away from the downtown core. Ease of biking or walking to work is a huge draw for professionals in this building as the location is nestled within a predominantly residential neighborhood. This superior location, along with the buildings complimentary styling to the community, makes this a premier opportunity.
- Bus Line
- Day Care
- Restaurant
- Signage
- Bicycle Storage
- Shower Facilities
- Air Conditioning
- Smoke Detector
Property Facts
Select Tenants
- Floor
- Tenant Name
- Industry
- 4th
- Bright Directions Psychology
- Health Care and Social Assistance
- 1st
- Browns Social House
- Retailer
- 1st
- Engel & Volkers
- Real Estate
- 1st
- Fishman's Personal Care Cleaners
- Services
- 1st
- Grumans Deli Britannia
- Retailer
- 1st
- Lagree
- Services
- 2nd
- Litwiniuk and Company
- Services
- 1st
- Normandeau Window Coverings
- Retailer
- 1st
- The Bridal Boutique
- Retailer
- 1st
- Urban Venus beautybar
- Services
Presented by
Britannia Crossing | 5113-5139 Elbow Dr SW
Hmm, there seems to have been an error sending your message. Please try again.
Thanks! Your message was sent.










