Votre courriel a été envoyé.
Certaines informations ont été traduites automatiquement.
Faits saillants de la sous-location
- À quelques minutes de Deerfoot Trail, Barlow Trail et de l'avenue 32 NE.
- Proximité immédiate de l'aéroport international de Calgary.
Caractéristiques
Tous les espaces disponibles(1)
Afficher les taux de location en
- Espace
- Taille
- Terme
- Taux de location
- Utilisation de l’espace
- Aménagement
- Disponible
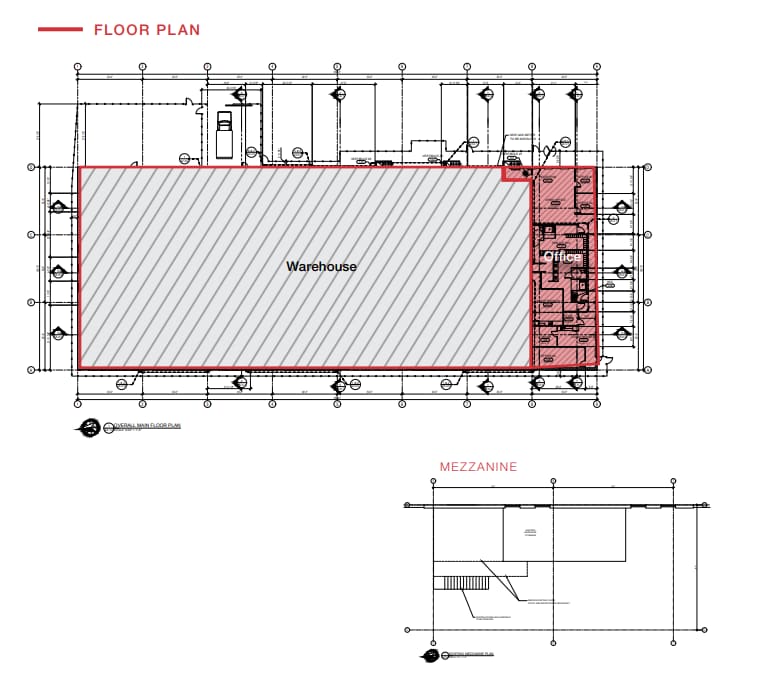
Cette propriété industrielle bien située de ±25 587 pi² dans le parc industriel établi de McCall à Calgary offre un entrepôt fonctionnel accompagné d'améliorations de bureaux de haute qualité, bénéficiant d'une abondante lumière naturelle. La disposition comprend un mélange d'espaces de travail ouverts et de bureaux aménagés, offrant une flexibilité pour une variété d'usages industriels ou opérationnels. L'installation était auparavant configurée pour un utilisateur de production de cannabis, et les améliorations existantes peuvent rester en place ou être retirées pour s'adapter à des opérations d'entrepôt traditionnelles.
- Espace de sous-location disponible auprès du locataire actuel
- 4 accès plain-pied
- Adjacent au parcours de golf McCall Lake.
- Le taux de location ne comprend pas les services publics, les services de bâtiment ou les dépenses immobilières.
- 2 quais de chargement
- Capacité électrique robuste de 1 500 ampères.
| Espace | Taille | Terme | Taux de location | Utilisation de l’espace | Aménagement | Disponible |
| 1er étage | 25 587 pi² | Sept. 2028 | Sur demande Sur demande Sur demande Sur demande | Industriel | construction complète | Maintenant |
1er étage
| Taille |
| 25 587 pi² |
| Terme |
| Sept. 2028 |
| Taux de location |
| Sur demande Sur demande Sur demande Sur demande |
| Utilisation de l’espace |
| Industriel |
| Aménagement |
| construction complète |
| Disponible |
| Maintenant |
1er étage
| Taille | 25 587 pi² |
| Terme | Sept. 2028 |
| Taux de location | Sur demande |
| Utilisation de l’espace | Industriel |
| Aménagement | construction complète |
| Disponible | Maintenant |
Cette propriété industrielle bien située de ±25 587 pi² dans le parc industriel établi de McCall à Calgary offre un entrepôt fonctionnel accompagné d'améliorations de bureaux de haute qualité, bénéficiant d'une abondante lumière naturelle. La disposition comprend un mélange d'espaces de travail ouverts et de bureaux aménagés, offrant une flexibilité pour une variété d'usages industriels ou opérationnels. L'installation était auparavant configurée pour un utilisateur de production de cannabis, et les améliorations existantes peuvent rester en place ou être retirées pour s'adapter à des opérations d'entrepôt traditionnelles.
- Espace de sous-location disponible auprès du locataire actuel
- Le taux de location ne comprend pas les services publics, les services de bâtiment ou les dépenses immobilières.
- 4 accès plain-pied
- 2 quais de chargement
- Adjacent au parcours de golf McCall Lake.
- Capacité électrique robuste de 1 500 ampères.
Aperçu de la propriété
Cette propriété industrielle bien située de ±25 587 pi² dans le parc industriel établi de McCall à Calgary offre un entrepôt fonctionnel accompagné d'aménagements de bureaux de haute qualité bénéficiant d'une abondante lumière naturelle. La disposition comprend un mélange d'espaces de travail ouverts et de bureaux aménagés, offrant une flexibilité pour une variété d'usages industriels ou opérationnels. L'installation avait auparavant été configurée pour un utilisateur de production de cannabis, et les améliorations existantes peuvent rester en place ou être retirées pour s'adapter à des opérations d'entrepôt traditionnelles.
Faits sur l’installation entrepôt
Sélectionner des locataires
- Étage
- Nom du locataire
- Secteur
- 1ᵉʳ
- Athletica Gymnastics
- Arts, divertissement et loisirs
- 1ᵉʳ
- Harris
- Information
- 1ᵉʳ
- Novatech
- Fabrication
- 1ᵉʳ
- Primerica
- Finance et assurances
Présenté par
Building 2 | 1338 36th Ave NE
Hmm, il semble y avoir eu une erreur lors de l’envoi de votre message. Veuillez réessayer.
Merci! Votre message a été envoyé.






