Votre courriel a été envoyé.
185 York St - 185 York Street Lot • Terrain commercial • 0,07 Acres • 748 962 $ CAD • Ottawa, ON K1N 5T7



Certaines informations ont été traduites automatiquement.
Faits saillants de l'investissement
- Emplacement de choix dans le Marché Byward d'Ottawa
- À quelques pas du Centre Rideau, de la station de train léger, de l'Université d'Ottawa, des restaurants.
- Une partie du plan d'aménagement public du marché ByWard d'Ottawa
- Les usages permis incluent des immeubles d'habitation de faible hauteur, de hauteur moyenne et de grande hauteur.
Résumé de l'annonce
Faits sur la propriété Sous contrat
1 Lot disponible
Lot
| Prix | 748 962 $ CAD | Taille du lot | 0,07 AC |
| Prix par AC | 10 166 582,96 $ CAD |
| Prix | 748 962 $ CAD |
| Prix par AC | 10 166 582,96 $ CAD |
| Taille du lot | 0,07 AC |
Lotissement de développement "Missing Middle" permettant des usages résidentiels allant de faible à grande hauteur, ainsi que des usages commerciaux limités au rez-de-chaussée (par exemple, commerce de détail, bureau, café) au sein de bâtiments à usage mixte.
Description
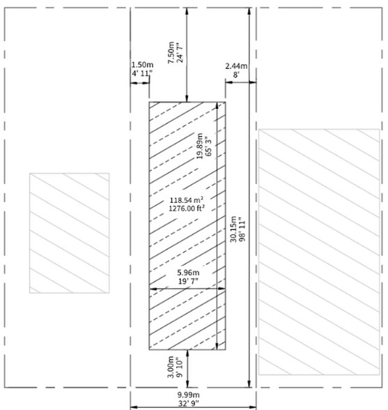
Site de développement de premier choix dans le Marché By d’Ottawa! Le 185, rue York offre une flexibilité exceptionnelle en matière de zonage avec la désignation actuelle R5S S77 et la future désignation N6B S77 selon le nouveau règlement de zonage d’Ottawa. Les usages permis incluent des immeubles d’appartements de faible, moyenne et grande hauteur – une occasion rare de construire jusqu’à 6 étages (hauteur de 21,4 m) de plein droit. Les dérogations mineures précédemment approuvées (largeur et superficie du lot) simplifient le développement sans nécessiter de consultation publique. La propriété mesure environ 33 x 99 (3 209 pi²) et comprend un droit de passage de 2,44 m sur le côté est pour un accès amélioré au site. Situé à quelques pas du Centre Rideau, de l’Université d’Ottawa, de la Colline du Parlement, de la station O-Train et du Marché By, cet emplacement est idéal pour des projets résidentiels urbains de boutique, des logements locatifs construits sur mesure ou des constructions de luxe à unités multiples. Les usages commerciaux au rez-de-chaussée sont également permis, incluant des commerces de détail, des bureaux ou des cafés, ce qui en fait un site parfait pour un développement à usage mixte. Positionné sur la rue York – qui sera bientôt transformée en une promenade partagée priorisant les piétons (2025 - 2027) dans le cadre du Plan d’aménagement du domaine public du Marché By d’Ottawa – ce site offre une visibilité rare et un potentiel à long terme. Aucun besoin de démolition – un gain immédiat de temps et de coûts pour les développeurs. Les acheteurs sont responsables de leur propre diligence raisonnable concernant les options de développement, la conformité au code du bâtiment et la planification du site. Une occasion rare de sécuriser un terrain premium dans le quartier le plus dynamique du centre-ville d’Ottawa!
Présenté par
185 York St - 185 York Street
Hmm, il semble y avoir eu une erreur lors de l’envoi de votre message. Veuillez réessayer.
Merci! Votre message a été envoyé.
