Votre courriel a été envoyé.
400 Hunt Club Rd 20 000–116 415 pi² d'espace disponible • Ottawa, ON K1V 1C1



Certaines informations ont été traduites automatiquement.
Faits saillants
- Abondance de stationnement sur place
- Quatre (4) portes de chargement à quai et une (1) porte de chargement de plain-pied
- Les grandes fenêtres offrent une abondance de lumière naturelle partout.
- Accessible par les lignes de transport en commun
Caractéristiques
Tous les espaces disponibles(3)
Afficher les taux de location en
- Espace
- Taille
- Terme
- Taux de location
- Utilisation de l’espace
- Aménagement
- Disponible
Le 400 Hunt Club Road est un bâtiment industriel léger autonome et entièrement sécurisé, situé dans le sud d'Ottawa, idéalement placé entre Riverside Drive et Bank Street. La propriété offre un mélange d'espaces de bureaux et d'entrepôts adaptés à une large gamme d'utilisateurs. Les zones de bureaux sont entièrement aménagées, comprenant une combinaison d'espaces de travail ouverts et de bureaux privés, avec accès à plusieurs salles de réunion de tailles variées et une cafétéria partagée. L'espace peut être subdivisé et est entièrement équipé de systèmes de CVC et de contrôle de l'humidité. Un ascenseur permet d'accéder aux bureaux du deuxième étage. L'emplacement est proche de nombreux commerces de détail, restaurants et services, ainsi que de l'aéroport international d'Ottawa.
- Le taux de location ne comprend pas les services publics, les services de bâtiment ou les dépenses immobilières.
- Disposition intensive du bureau
- Espace en excellent état
- Plafond suspendu
- Entièrement construit comme Bureau standard
- Convient pour 50 à 160 personnes
- Peut être associé à un ou plusieurs espaces supplémentaires pour obtenir jusqu’à 116 415 pi² d’espace adjacent.
Le 400 Hunt Club Road est un bâtiment industriel léger autonome et entièrement sécurisé, situé dans le sud d'Ottawa, idéalement placé entre Riverside Drive et Bank Street. La propriété offre un mélange d'espaces de bureaux et d'entrepôts adaptés à une large gamme d'utilisateurs. Les zones de bureaux sont entièrement aménagées, avec une combinaison d'espaces de travail ouverts et de salles privées, un accès à plusieurs salles de réunion de tailles variées, et une cafétéria partagée. L'espace peut être subdivisé et est entièrement équipé de systèmes de CVC et de contrôle de l'humidité. Un ascenseur permet d'accéder aux bureaux du deuxième étage. L'emplacement est proche de nombreux commerces, restaurants et services, ainsi que de l'aéroport international d'Ottawa.
- Le taux de location ne comprend pas les services publics, les services de bâtiment ou les dépenses immobilières.
- Peut être associé à un ou plusieurs espaces supplémentaires pour obtenir jusqu’à 116 415 pi² d’espace adjacent.
- Entreposage sécurisé
- 1 accès plain-pied
- 4 quais de chargement
Le 400 Hunt Club Road est un bâtiment industriel léger autonome et entièrement sécurisé, situé dans le sud d'Ottawa, idéalement placé entre Riverside Drive et Bank Street. La propriété offre un mélange d'espaces de bureaux et d'entrepôts adaptés à une large gamme d'utilisateurs. Les zones de bureaux sont entièrement aménagées, comprenant une combinaison d'espaces de travail ouverts et de bureaux privés, avec accès à plusieurs salles de réunion de tailles variées et une cafétéria partagée. L'espace peut être subdivisé et est entièrement équipé de systèmes de CVC et de contrôle de l'humidité. Un ascenseur permet d'accéder aux bureaux du deuxième étage. L'emplacement est proche de nombreux commerces de détail, restaurants et services, ainsi que de l'aéroport international d'Ottawa.
- Le taux de location ne comprend pas les services publics, les services de bâtiment ou les dépenses immobilières.
- Disposition du plan d’étage ouverte en général
- Espace en excellent état
- Plafond suspendu
- Entièrement construit comme Bureau standard
- Convient pour 50 à 160 personnes
- Peut être associé à un ou plusieurs espaces supplémentaires pour obtenir jusqu’à 116 415 pi² d’espace adjacent.
| Espace | Taille | Terme | Taux de location | Utilisation de l’espace | Aménagement | Disponible |
| 1er étage | 20 000 pi² | Négociable | Sur demande Sur demande Sur demande Sur demande | Bureau | construction complète | 60 jours |
| 1er étage - Warehouse | 76 415 pi² | Négociable | Sur demande Sur demande Sur demande Sur demande | Industriel | construction partielle | 2026-09-01 |
| 2e étage | 20 000 pi² | Négociable | Sur demande Sur demande Sur demande Sur demande | Bureau | construction complète | 60 jours |
1er étage
| Taille |
| 20 000 pi² |
| Terme |
| Négociable |
| Taux de location |
| Sur demande Sur demande Sur demande Sur demande |
| Utilisation de l’espace |
| Bureau |
| Aménagement |
| construction complète |
| Disponible |
| 60 jours |
1er étage - Warehouse
| Taille |
| 76 415 pi² |
| Terme |
| Négociable |
| Taux de location |
| Sur demande Sur demande Sur demande Sur demande |
| Utilisation de l’espace |
| Industriel |
| Aménagement |
| construction partielle |
| Disponible |
| 2026-09-01 |
2e étage
| Taille |
| 20 000 pi² |
| Terme |
| Négociable |
| Taux de location |
| Sur demande Sur demande Sur demande Sur demande |
| Utilisation de l’espace |
| Bureau |
| Aménagement |
| construction complète |
| Disponible |
| 60 jours |
1er étage
| Taille | 20 000 pi² |
| Terme | Négociable |
| Taux de location | Sur demande |
| Utilisation de l’espace | Bureau |
| Aménagement | construction complète |
| Disponible | 60 jours |
Le 400 Hunt Club Road est un bâtiment industriel léger autonome et entièrement sécurisé, situé dans le sud d'Ottawa, idéalement placé entre Riverside Drive et Bank Street. La propriété offre un mélange d'espaces de bureaux et d'entrepôts adaptés à une large gamme d'utilisateurs. Les zones de bureaux sont entièrement aménagées, comprenant une combinaison d'espaces de travail ouverts et de bureaux privés, avec accès à plusieurs salles de réunion de tailles variées et une cafétéria partagée. L'espace peut être subdivisé et est entièrement équipé de systèmes de CVC et de contrôle de l'humidité. Un ascenseur permet d'accéder aux bureaux du deuxième étage. L'emplacement est proche de nombreux commerces de détail, restaurants et services, ainsi que de l'aéroport international d'Ottawa.
- Le taux de location ne comprend pas les services publics, les services de bâtiment ou les dépenses immobilières.
- Entièrement construit comme Bureau standard
- Disposition intensive du bureau
- Convient pour 50 à 160 personnes
- Espace en excellent état
- Peut être associé à un ou plusieurs espaces supplémentaires pour obtenir jusqu’à 116 415 pi² d’espace adjacent.
- Plafond suspendu
1er étage - Warehouse
| Taille | 76 415 pi² |
| Terme | Négociable |
| Taux de location | Sur demande |
| Utilisation de l’espace | Industriel |
| Aménagement | construction partielle |
| Disponible | 2026-09-01 |
Le 400 Hunt Club Road est un bâtiment industriel léger autonome et entièrement sécurisé, situé dans le sud d'Ottawa, idéalement placé entre Riverside Drive et Bank Street. La propriété offre un mélange d'espaces de bureaux et d'entrepôts adaptés à une large gamme d'utilisateurs. Les zones de bureaux sont entièrement aménagées, avec une combinaison d'espaces de travail ouverts et de salles privées, un accès à plusieurs salles de réunion de tailles variées, et une cafétéria partagée. L'espace peut être subdivisé et est entièrement équipé de systèmes de CVC et de contrôle de l'humidité. Un ascenseur permet d'accéder aux bureaux du deuxième étage. L'emplacement est proche de nombreux commerces, restaurants et services, ainsi que de l'aéroport international d'Ottawa.
- Le taux de location ne comprend pas les services publics, les services de bâtiment ou les dépenses immobilières.
- 1 accès plain-pied
- Peut être associé à un ou plusieurs espaces supplémentaires pour obtenir jusqu’à 116 415 pi² d’espace adjacent.
- 4 quais de chargement
- Entreposage sécurisé
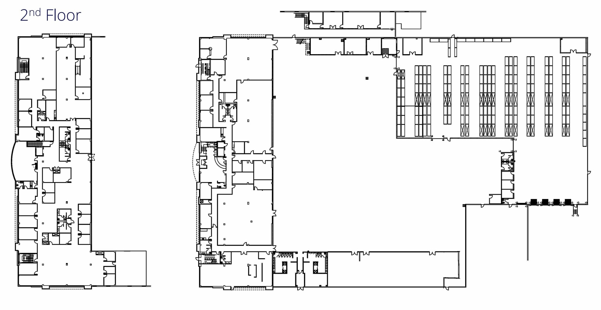
2e étage
| Taille | 20 000 pi² |
| Terme | Négociable |
| Taux de location | Sur demande |
| Utilisation de l’espace | Bureau |
| Aménagement | construction complète |
| Disponible | 60 jours |
Le 400 Hunt Club Road est un bâtiment industriel léger autonome et entièrement sécurisé, situé dans le sud d'Ottawa, idéalement placé entre Riverside Drive et Bank Street. La propriété offre un mélange d'espaces de bureaux et d'entrepôts adaptés à une large gamme d'utilisateurs. Les zones de bureaux sont entièrement aménagées, comprenant une combinaison d'espaces de travail ouverts et de bureaux privés, avec accès à plusieurs salles de réunion de tailles variées et une cafétéria partagée. L'espace peut être subdivisé et est entièrement équipé de systèmes de CVC et de contrôle de l'humidité. Un ascenseur permet d'accéder aux bureaux du deuxième étage. L'emplacement est proche de nombreux commerces de détail, restaurants et services, ainsi que de l'aéroport international d'Ottawa.
- Le taux de location ne comprend pas les services publics, les services de bâtiment ou les dépenses immobilières.
- Entièrement construit comme Bureau standard
- Disposition du plan d’étage ouverte en général
- Convient pour 50 à 160 personnes
- Espace en excellent état
- Peut être associé à un ou plusieurs espaces supplémentaires pour obtenir jusqu’à 116 415 pi² d’espace adjacent.
- Plafond suspendu
Faits sur l’installation distribution
Présenté par
400 Hunt Club Rd
Hmm, il semble y avoir eu une erreur lors de l’envoi de votre message. Veuillez réessayer.
Merci! Votre message a été envoyé.



