Votre courriel a été envoyé.
Certaines informations ont été traduites automatiquement.
Tous les espaces disponibles(2)
Afficher les taux de location en
- Espace
- Taille
- Terme
- Taux de location
- Utilisation de l’espace
- Aménagement
- Disponible
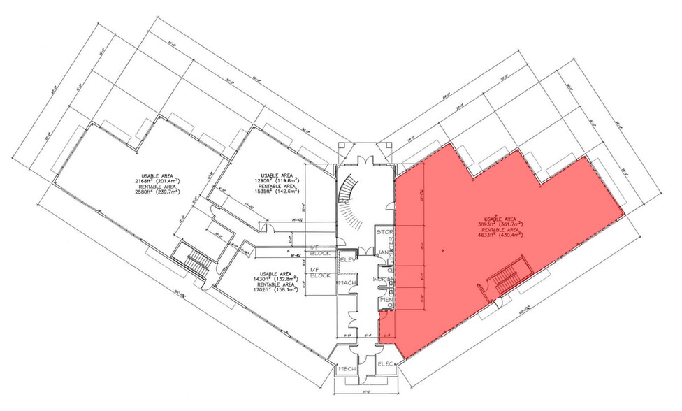
À LOUER - Situé dans le Creekside Professional Centre, un immeuble bien entretenu le long de Gaetz Avenue Sud, l'Unité 101 offre 4 633 pieds carrés louables (3 893 pieds carrés utilisables). Ce local comprend une réception et une salle d'attente, plusieurs bureaux avec fenêtres, une salle de lunch pour le personnel, une salle de conférence, une salle de photocopie, deux salles de bain et un espace de travail ouvert. L'immeuble est équipé d'un ascenseur ainsi que d'un escalier courbé dans le hall menant au deuxième étage. Un stationnement pour le personnel est disponible à l'arrière du bâtiment, et de nombreux espaces de stationnement partagés se trouvent à l'avant. L'immeuble est géré professionnellement par Sunreal Property Management. Les frais supplémentaires sont estimés à 13,25 $ par pied carré pour l'année budgétaire 2024-2025.
- Le taux de location ne comprend pas les services publics, les services de bâtiment ou les dépenses immobilières.
- 7 bureaux privés
- Aire de réception
- Salle d’impression/Photocopie
- Lumière naturelle
- Stationnement du personnel disponible derrière l'immeuble
- Entièrement construit comme Bureau standard
- Espace en excellent état
- Cuisine
- Salle de bains privée
- L'immeuble est équipé d'un ascenseur
- L'espace comprend un escalier incurvé dans le hall
À LOUER - Située au deuxième étage du très recherché Creekside Professional Centre, cette unité de 1 655 SF comprend une réception et une salle d'attente avec un bureau intégré, une réception, trois salles de soins avec lavabos, une salle de bain, une cuisinette/salle du personnel, une buanderie et une salle de laboratoire avec branchements de buanderie et évier. Chaque chambre dispose de fenêtres pour apporter beaucoup de lumière naturelle. Il y a des toilettes communes aux deux étages et un ascenseur, ainsi qu'un escalier incurvé qui vous mène au deuxième étage. Le stationnement du personnel est disponible directement derrière l'immeuble et de nombreuses places de stationnement partagées sont disponibles à l'avant. L'immeuble est géré professionnellement par Sunreal Property Management. Le loyer supplémentaire est de 13,25$ pour l'exercice budgétaire 2024-2025.
- Le taux de location ne comprend pas les services publics, les services de bâtiment ou les dépenses immobilières.
- Aire de réception
- Salle de bains privée
- Des places de stationnement pour le personnel sont disponibles derrière l'immeuble
- L'espace comprend un escalier incurvé dans le hall
- Entièrement construit comme Bureau standard
- Cuisine
- Lumière naturelle
- Toilettes partagées aux deux étages
| Espace | Taille | Terme | Taux de location | Utilisation de l’espace | Aménagement | Disponible |
| 1er étage, ste 101 | 4 633 pi² | Négociable | 20,00 $ CAD/pi²/an 1,67 $ CAD/pi²/mois 92 660 $ CAD/an 7 722 $ CAD/mois | Bureau | construction complète | 60 jours |
| 2e étage, ste 210 | 1 655 pi² | Négociable | 17,00 $ CAD/pi²/an 1,42 $ CAD/pi²/mois 28 135 $ CAD/an 2 345 $ CAD/mois | Bureau | construction complète | Maintenant |
1er étage, ste 101
| Taille |
| 4 633 pi² |
| Terme |
| Négociable |
| Taux de location |
| 20,00 $ CAD/pi²/an 1,67 $ CAD/pi²/mois 92 660 $ CAD/an 7 722 $ CAD/mois |
| Utilisation de l’espace |
| Bureau |
| Aménagement |
| construction complète |
| Disponible |
| 60 jours |
2e étage, ste 210
| Taille |
| 1 655 pi² |
| Terme |
| Négociable |
| Taux de location |
| 17,00 $ CAD/pi²/an 1,42 $ CAD/pi²/mois 28 135 $ CAD/an 2 345 $ CAD/mois |
| Utilisation de l’espace |
| Bureau |
| Aménagement |
| construction complète |
| Disponible |
| Maintenant |
1er étage, ste 101
| Taille | 4 633 pi² |
| Terme | Négociable |
| Taux de location | 20,00 $ CAD/pi²/an |
| Utilisation de l’espace | Bureau |
| Aménagement | construction complète |
| Disponible | 60 jours |
À LOUER - Situé dans le Creekside Professional Centre, un immeuble bien entretenu le long de Gaetz Avenue Sud, l'Unité 101 offre 4 633 pieds carrés louables (3 893 pieds carrés utilisables). Ce local comprend une réception et une salle d'attente, plusieurs bureaux avec fenêtres, une salle de lunch pour le personnel, une salle de conférence, une salle de photocopie, deux salles de bain et un espace de travail ouvert. L'immeuble est équipé d'un ascenseur ainsi que d'un escalier courbé dans le hall menant au deuxième étage. Un stationnement pour le personnel est disponible à l'arrière du bâtiment, et de nombreux espaces de stationnement partagés se trouvent à l'avant. L'immeuble est géré professionnellement par Sunreal Property Management. Les frais supplémentaires sont estimés à 13,25 $ par pied carré pour l'année budgétaire 2024-2025.
- Le taux de location ne comprend pas les services publics, les services de bâtiment ou les dépenses immobilières.
- Entièrement construit comme Bureau standard
- 7 bureaux privés
- Espace en excellent état
- Aire de réception
- Cuisine
- Salle d’impression/Photocopie
- Salle de bains privée
- Lumière naturelle
- L'immeuble est équipé d'un ascenseur
- Stationnement du personnel disponible derrière l'immeuble
- L'espace comprend un escalier incurvé dans le hall
2e étage, ste 210
| Taille | 1 655 pi² |
| Terme | Négociable |
| Taux de location | 17,00 $ CAD/pi²/an |
| Utilisation de l’espace | Bureau |
| Aménagement | construction complète |
| Disponible | Maintenant |
À LOUER - Située au deuxième étage du très recherché Creekside Professional Centre, cette unité de 1 655 SF comprend une réception et une salle d'attente avec un bureau intégré, une réception, trois salles de soins avec lavabos, une salle de bain, une cuisinette/salle du personnel, une buanderie et une salle de laboratoire avec branchements de buanderie et évier. Chaque chambre dispose de fenêtres pour apporter beaucoup de lumière naturelle. Il y a des toilettes communes aux deux étages et un ascenseur, ainsi qu'un escalier incurvé qui vous mène au deuxième étage. Le stationnement du personnel est disponible directement derrière l'immeuble et de nombreuses places de stationnement partagées sont disponibles à l'avant. L'immeuble est géré professionnellement par Sunreal Property Management. Le loyer supplémentaire est de 13,25$ pour l'exercice budgétaire 2024-2025.
- Le taux de location ne comprend pas les services publics, les services de bâtiment ou les dépenses immobilières.
- Entièrement construit comme Bureau standard
- Aire de réception
- Cuisine
- Salle de bains privée
- Lumière naturelle
- Des places de stationnement pour le personnel sont disponibles derrière l'immeuble
- Toilettes partagées aux deux étages
- L'espace comprend un escalier incurvé dans le hall
Aperçu de la propriété
À LOUER - Situé dans le centre professionnel Creekside bien entretenu le long de l'avenue Gaetz Sud, l'unité 101 est de 4 633 pi2 louables (3 893 pi2 utilisables) et comprend une réception et une salle d'attente, plusieurs bureaux avec fenêtres, une salle de repas pour le personnel, une salle de conférence, une salle de photocopie, deux toilettes et une aire de travail ouverte. L'immeuble est équipé d'un ascenseur, ainsi que d'un escalier incurvé dans le hall qui vous mène au deuxième étage. Il y a des places de stationnement pour le personnel à l'arrière de l'immeuble et de nombreuses places de stationnement communes à l'avant. L'immeuble est géré professionnellement par Sunreal Property Management. Le loyer supplémentaire est estimé à 13,25$ par pied carré pour l'exercice budgétaire 2024-2025.
- Affichage
Faits sur la propriété
Présenté par
4320 50 Ave
Hmm, il semble y avoir eu une erreur lors de l’envoi de votre message. Veuillez réessayer.
Merci! Votre message a été envoyé.









