Votre courriel a été envoyé.
63 6 Th Av W - 315 63 W 6th ave Unité de condo • Bureau • 1 322 pi² • À vendre 1 950 000 $ CAD • Vancouver, BC V5Y 1K2



Certaines informations ont été traduites automatiquement.
Résumé de l'annonce
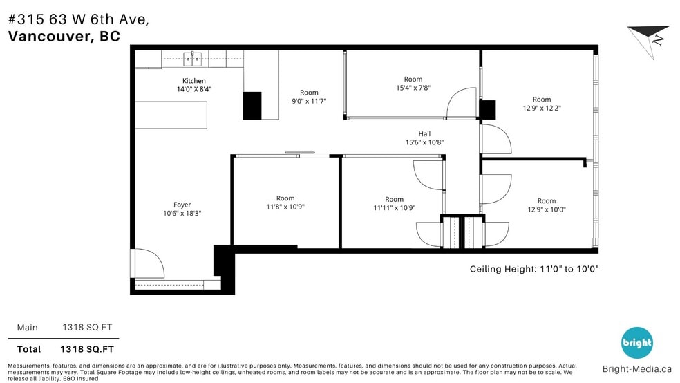
Suite commerciale exceptionnelle au 63 W 6th Avenue, idéalement située dans le quartier animé de Mount Pleasant à Vancouver. Cet espace lumineux et moderne comprend quatre bureaux privés, une salle de réunion, une cuisine et une disposition bien pensée, parfaite pour les services professionnels, les entreprises créatives ou les petites entreprises recherchant fonctionnalité et confort. Une terrasse sur le toit et deux places de stationnement sécurisées en sous-sol sont incluses. Profitez d'une excellente visibilité, d'un accès pratique aux transports en commun et de la proximité du Village Olympique et des commodités locales. Une occasion rare de s'établir à une adresse centrale et pleine de caractère dans l'un des pôles commerciaux les plus dynamiques de Vancouver!
1 Unité disponible
Unité 315
| Taille de l’unité | 1 322 pi² | Utilisation du condo | Bureau |
| Prix | 1 950 000 $ CAD | Type de vente | Investissement |
| Prix par pi² | 1 475,04 $ CAD |
| Taille de l’unité | 1 322 pi² |
| Prix | 1 950 000 $ CAD |
| Prix par pi² | 1 475,04 $ CAD |
| Utilisation du condo | Bureau |
| Type de vente | Investissement |
Notes sur la vente
Suite commerciale exceptionnelle au 63 W 6th Avenue, idéalement située dans le quartier dynamique de Mount Pleasant à Vancouver. Cet espace lumineux et moderne comprend quatre bureaux privés, une salle de conférence, une cuisine et un aménagement bien conçu, idéal pour les services professionnels, les entreprises créatives ou les petites entreprises recherchant fonctionnalité et confort. Une terrasse sur le toit et deux places de stationnement souterraines sécurisées sont incluses. Profitez d'une excellente visibilité, d'un accès pratique aux transports en commun et de la proximité du Village Olympique et des commodités locales. Une occasion rare de sécuriser une adresse centrale, riche en caractère, dans l'un des pôles commerciaux les plus dynamiques de Vancouver!
Interior
Interior
Interior
Interior
Interior
Interior
Interior
Interior
Interior
Interior
Interior
Interior
Interior
Interior
Interior
Interior
Interior
Interior
Interior
Interior
Parking Spaces
Faits sur la propriété
| Taille totale du bâtiment | 47 165 pi² | Superficie de plancher typique | 11 791 pi² |
| Type de propriété | Bureau (Condo) | Année de construction | 2021 |
| Sous-type de propriété | Médical | Taille du lot | 1,28 AC |
| Classe d’immeuble | A | Ratio de stationnement | 0,04/1 000 pi² |
| Planchers | 5 | ||
| Zonage | I-1 - Quartier industriel | ||
| Taille totale du bâtiment | 47 165 pi² |
| Type de propriété | Bureau (Condo) |
| Sous-type de propriété | Médical |
| Classe d’immeuble | A |
| Planchers | 5 |
| Superficie de plancher typique | 11 791 pi² |
| Année de construction | 2021 |
| Taille du lot | 1,28 AC |
| Ratio de stationnement | 0,04/1 000 pi² |
| Zonage | I-1 - Quartier industriel |
Commodités
- Restaurant
- Système de sécurité
- Terrasse sur le toit
- Entreposage de vélo
- Douches
Présenté par
63 6 Th Av W - 315 63 W 6th ave
Hmm, il semble y avoir eu une erreur lors de l’envoi de votre message. Veuillez réessayer.
Merci! Votre message a été envoyé.

