Se Connecter/S’inscrire
Votre courriel a été envoyé.
7524-7550 Ch De La Côte-de-Liesse Unités de condo • Industriel • 11 750-12 250 pi² • Montréal, QC H4P 1A9



Certaines informations ont été traduites automatiquement.
Faits saillants de l'investissement
- Emplacement excellent avec accès rapide aux autoroutes 520, 13, 20 et 40
- Espace de bureau récemment rénové
- Hauteur libre de 20 pieds
- Peut être acheté individuellement ou ensemble
2 Unités disponibles
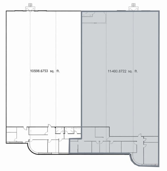
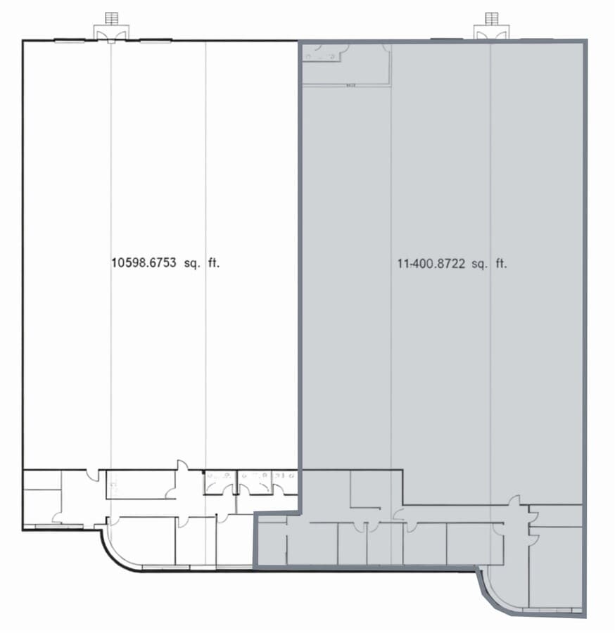
Unité 7540
| Taille de l’unité | 12 250 pi² | Type de vente | Propriétaire utilisateur |
| Utilisation du condo | Industriel |
| Taille de l’unité | 12 250 pi² |
| Utilisation du condo | Industriel |
| Type de vente | Propriétaire utilisateur |
Notes sur la vente
Condo industriel à vendre, comprend 2 portes au niveau des camions, 1 porte d'entrée et une porte compacte.
7540 Floor Plan
Combined Floor plan
Mezzanine
Interior Photo
Interior Photo
Interior Photo
1 de 6
Vidéos
Visite extérieure 3D Matterport
Visite 3D Matterport
Photos
Vue depuis la rue
Rue
Carte
Unité 7544
| Taille de l’unité | 11 750 pi² | Type de vente | Investissement ou propriétaire utilisateur |
| Utilisation du condo | Industriel |
| Taille de l’unité | 11 750 pi² |
| Utilisation du condo | Industriel |
| Type de vente | Investissement ou propriétaire utilisateur |
Notes sur la vente
Espace industriel disponible avec 4 portes de quai pour camions.
7544 Floor Plan
Combined Floor Plan
Mezzanine
Interior Photo
Interior Photo
Interior Photo
1 de 6
Vidéos
Visite extérieure 3D Matterport
Visite 3D Matterport
Photos
Vue depuis la rue
Rue
Carte
Faits sur la propriété
Les caractéristiques, les équipements et les services publics suivants s'appliquent à l'ensemble du bâtiment. Les détails relatifs aux unités de copropriété individuelles peuvent varier et figurent dans les informations concernant les unités ci-dessus.
| Taille totale du bâtiment | 68 815 pi² | Superficie de plancher typique | 68 815 pi² |
| Type de propriété | Industriel | Année de construction | 1988 |
| Sous-type de propriété | Centre de distribution | Taille du lot | 5,11 AC |
| Classe d’immeuble | A | Ratio de stationnement | 1,21/1 000 pi² |
| Planchers | 1 | ||
| Zonage | C1, S1, S3, I2, I3, I4 an | ||
| Taille totale du bâtiment | 68 815 pi² |
| Type de propriété | Industriel |
| Sous-type de propriété | Centre de distribution |
| Classe d’immeuble | A |
| Planchers | 1 |
| Superficie de plancher typique | 68 815 pi² |
| Année de construction | 1988 |
| Taille du lot | 5,11 AC |
| Ratio de stationnement | 1,21/1 000 pi² |
| Zonage | C1, S1, S3, I2, I3, I4 an |
Commodités
- Ligne d'autobus
- Système de sécurité
- Affichage
- Espace d'entreposage
- Climatisation
Services publics
- Gaz - Naturel
- Eau - Ville
- Égout - Ville
- Chauffage - Électricité
1 1
Plutôt praticable à pied
30/100
Exceptionnellement facile d’accès en voiture
100/100
Bons transports en commun
70/100
Assez praticable en vélo
30/100
1 de 11
Vidéos
Visite extérieure 3D Matterport
Visite 3D Matterport
Photos
Vue depuis la rue
Rue
Carte
1 de 1
Présenté par
7524-7550 Ch De La Côte-de-Liesse
Vous êtes déjà membre? Connectez-vous
Hmm, il semble y avoir eu une erreur lors de l’envoi de votre message. Veuillez réessayer.
Merci! Votre message a été envoyé.


