Votre courriel a été envoyé.
Beaver House 10158-10160 103rd St NW 1 754–54 509 pi² d'espace disponible • Bureau • Edmonton, AB T5J 0X6



Certaines informations ont été traduites automatiquement.
Faits saillants
- Emplacement directement le long des principales lignes d'autobus
Tous les espaces disponibles(9)
Afficher les taux de location en
- Espace
- Taille
- Terme
- Taux de location
- Utilisation de l’espace
- Aménagement
- Disponible
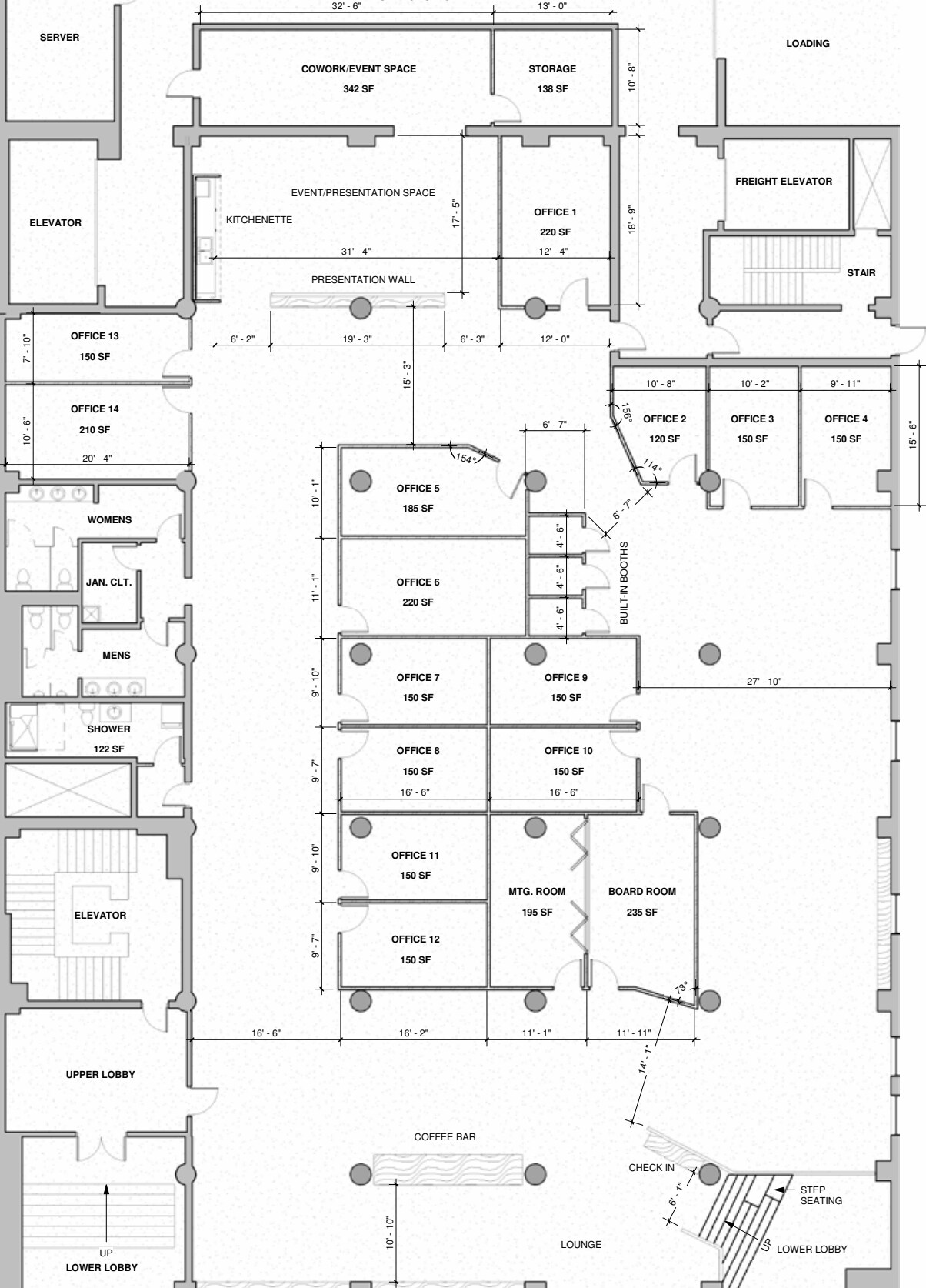
La Suite 100 à Beaver House offre une occasion rare de louer un espace de bureau entièrement aménagé et au design avant-gardiste dans l'un des bâtiments patrimoniaux les plus riches en caractère du centre-ville d'Edmonton. S'étendant sur 11 694 pieds carrés, cette suite allie une architecture en briques et poutres apparentes à des finitions modernes et des commodités réfléchies. L'aménagement comprend 13 bureaux privés, une salle de conférence, une salle de réunion, un espace de coworking/événement, une kitchenette, un salon avec sièges en gradins, des cabines intégrées et une douche—idéal pour les entreprises recherchant un espace de travail dynamique et axé sur le bien-être. Les locataires bénéficient d'une entrée extérieure exclusive, d'une option entièrement meublée et d'un accès au salon partagé et à la salle de jeux du bâtiment. Situé sur la 103e Rue, Beaver House est à quelques pas du quartier ICE, de Rogers Place et d'un mélange vibrant de restaurants, cafés et lieux culturels. La propriété est directement connectée au réseau de passerelles d'Edmonton et se trouve à distance de marche de quatre stations de LRT, offrant un accès facile à travers la ville. Le rangement pour vélos et le stationnement sur le terrain adjacent améliorent encore la commodité pour les navetteurs. Des conditions de location flexibles à partir d'un an sont disponibles, avec des incitations clés en main complètes et un taux de location compétitif à partir de 14,00 $ par pied carré plus des coûts d'exploitation de 13,60 $ par pied carré. La Suite 100 est idéale pour les entreprises créatives, les entreprises technologiques ou les services professionnels cherchant une présence distinctive au centre-ville avec une fonctionnalité moderne.
- Le taux de location ne comprend pas les services publics, les services de bâtiment ou les dépenses immobilières.
- 13 bureaux privés
- Espace en excellent état
- Option entièrement meublée offerte
- Salon, kitchenette et douche
- Accès direct aux stations de LRT par passerelle piétonne
- Entièrement construit comme Bureau standard
- 1 salle de conférence
- Entrée extérieure exclusive disponible
- 13 bureaux privés plus salle de réunion
- À quelques pas du ICE District et du Rogers Place
Nouvelle unité à louer !
- Le taux de location ne comprend pas les services publics, les services de bâtiment ou les dépenses immobilières.
- Disposition du plan d’étage ouverte en général
- Peut être associé à un ou plusieurs espaces supplémentaires pour obtenir jusqu’à 6 334 pi² d’espace adjacent.
- Lumière naturelle
- Hauts plafonds
- Partiellement construit comme Bureau standard
- Espace en excellent état
- Climatisation centrale
- Stals disponibles dans le lot adjacent
Nouvelle unité à louer !
- Le taux de location ne comprend pas les services publics, les services de bâtiment ou les dépenses immobilières.
- Disposition du plan d’étage ouverte en général
- Peut être associé à un ou plusieurs espaces supplémentaires pour obtenir jusqu’à 6 334 pi² d’espace adjacent.
- Stals disponibles dans le lot adjacent
- Partiellement construit comme Bureau standard
- Espace en excellent état
- Climatisation centrale
- Hauts plafonds
Bâtiment patrimonial de caractère avec des améliorations modernes. À quelques pas du nouveau quartier Ice d'Edmonton. Situé en face du YMCA et du campus du centre-ville de l'Université de l'Alberta. Nouvelles commodités pour les locataires, y compris : rangement pour vélos, salon pour locataires avec jeux et garde-manger de cuisine.
- Le taux de location ne comprend pas les services publics, les services de bâtiment ou les dépenses immobilières.
- Disposition du plan d’étage ouverte en général
- Air central et chauffage
- Détecteur de fumée
- Plafonds hauts
- Partiellement construit comme Bureau standard
- Espace en excellent état
- Plafond exposé
- Stalles disponibles dans le terrain adjacent
Nouvelle unité à louer !
- Le taux de location ne comprend pas les services publics, les services de bâtiment ou les dépenses immobilières.
- Disposition du plan d’étage ouverte en général
- Peut être associé à un ou plusieurs espaces supplémentaires pour obtenir jusqu’à 8 680 pi² d’espace adjacent.
- Les décrochages sont disponibles dans le lot adjacent
- Partiellement construit comme Bureau standard
- Espace en excellent état
- Climatisation centrale
- Hauts plafonds
Nouvelle unité à louer !
- Le taux de location ne comprend pas les services publics, les services de bâtiment ou les dépenses immobilières.
- Disposition du plan d’étage ouverte en général
- Peut être associé à un ou plusieurs espaces supplémentaires pour obtenir jusqu’à 8 680 pi² d’espace adjacent.
- Hauts plafonds
- Partiellement construit comme Bureau standard
- Espace en excellent état
- Climatisation centrale
- Accès par ascenseur
Idéalement situé sur la rue 103, à distance de marche de certains des meilleurs restaurants d'Edmonton, ICE District et du système de pédale offrant un accès intérieur facile au centre financier. Les équipements de l'immeuble des locataires comprennent un local à vélos et un salon/salle de jeux moderne et confortable avec une grande cuisine.
- Le taux de location ne comprend pas les services publics, les services de bâtiment ou les dépenses immobilières.
- Disposition intensive du bureau
- Climatisation centrale
- salon confortable pour locataires/salle de jeux
- Entièrement construit comme Bureau standard
- Peut être associé à un ou plusieurs espaces supplémentaires pour obtenir jusqu’à 8 680 pi² d’espace adjacent.
- Les décrochages sont disponibles dans le lot adjacent
- Grande cuisine
Idéalement situé sur la rue 103, à distance de marche de certains des meilleurs restaurants d'Edmonton, ICE District et du système de pédale offrant un accès intérieur facile au centre financier. Les équipements de l'immeuble des locataires comprennent un local à vélos et un salon/salle de jeux moderne et confortable avec une grande cuisine.
- Le taux de location ne comprend pas les services publics, les services de bâtiment ou les dépenses immobilières.
- Disposition du plan d’étage ouverte en général
- Climatisation centrale
- Espace salon
- Partiellement construit comme Bureau de services financiers
- Peut être associé à un ou plusieurs espaces supplémentaires pour obtenir jusqu’à 13 526 pi² d’espace adjacent.
- Grande cuisine
- entreposage de vélos
Idéalement situé sur la rue 103, à distance de marche de certains des meilleurs restaurants d'Edmonton, ICE District et du système de pédale offrant un accès intérieur facile au centre financier. Les équipements de l'immeuble des locataires comprennent un local à vélos et un salon/salle de jeux moderne et confortable avec une grande cuisine.
- Le taux de location ne comprend pas les services publics, les services de bâtiment ou les dépenses immobilières.
- Disposition du plan d’étage ouverte en général
- Peut être associé à un ou plusieurs espaces supplémentaires pour obtenir jusqu’à 13 526 pi² d’espace adjacent.
- entreposage de vélos
- grande cuisine
- Partiellement construit comme Bureau standard
- Espace en excellent état
- Climatisation centrale
- Salon des locataires/salle de jeux moderne et confortable
| Espace | Taille | Terme | Taux de location | Utilisation de l’espace | Aménagement | Disponible |
| 1er étage, ste 100 | 11 694 pi² | Négociable | 14,00 $ CAD/pi²/an 1,17 $ CAD/pi²/mois 163 716 $ CAD/an 13 643 $ CAD/mois | Bureau | construction complète | Maintenant |
| 2e étage, ste 200 | 3 395 pi² | 5 ans | 14,00 $ CAD/pi²/an 1,17 $ CAD/pi²/mois 47 530 $ CAD/an 3 961 $ CAD/mois | Bureau | construction partielle | Maintenant |
| 2e étage, ste 220 | 2 939 pi² | 5 ans | 14,00 $ CAD/pi²/an 1,17 $ CAD/pi²/mois 41 146 $ CAD/an 3 429 $ CAD/mois | Bureau | construction partielle | Maintenant |
| 3e étage, ste 300 | 14 275 pi² | 1-10 ans | 14,00 $ CAD/pi²/an 1,17 $ CAD/pi²/mois 199 850 $ CAD/an 16 654 $ CAD/mois | Bureau | construction partielle | Maintenant |
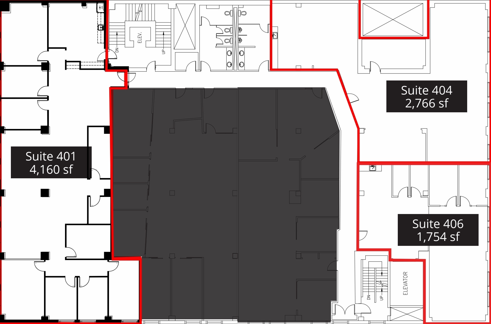
| 4e étage, ste 401 | 4 160 pi² | 5 ans | 14,00 $ CAD/pi²/an 1,17 $ CAD/pi²/mois 58 240 $ CAD/an 4 853 $ CAD/mois | Bureau | construction partielle | Maintenant |
| 4e étage, ste 404 | 2 766 pi² | 5 ans | 14,00 $ CAD/pi²/an 1,17 $ CAD/pi²/mois 38 724 $ CAD/an 3 227 $ CAD/mois | Bureau | construction partielle | Maintenant |
| 4e étage, ste 406 | 1 754 pi² | 1-10 ans | 14,00 $ CAD/pi²/an 1,17 $ CAD/pi²/mois 24 556 $ CAD/an 2 046 $ CAD/mois | Bureau | construction complète | Maintenant |
| 5e étage, ste 501 | 6 714 pi² | 1 an | 14,00 $ CAD/pi²/an 1,17 $ CAD/pi²/mois 93 996 $ CAD/an 7 833 $ CAD/mois | Bureau | construction partielle | Maintenant |
| 5e étage, ste 503 | 6 812 pi² | 5 ans | 14,00 $ CAD/pi²/an 1,17 $ CAD/pi²/mois 95 368 $ CAD/an 7 947 $ CAD/mois | Bureau | construction partielle | Maintenant |
1er étage, ste 100
| Taille |
| 11 694 pi² |
| Terme |
| Négociable |
| Taux de location |
| 14,00 $ CAD/pi²/an 1,17 $ CAD/pi²/mois 163 716 $ CAD/an 13 643 $ CAD/mois |
| Utilisation de l’espace |
| Bureau |
| Aménagement |
| construction complète |
| Disponible |
| Maintenant |
2e étage, ste 200
| Taille |
| 3 395 pi² |
| Terme |
| 5 ans |
| Taux de location |
| 14,00 $ CAD/pi²/an 1,17 $ CAD/pi²/mois 47 530 $ CAD/an 3 961 $ CAD/mois |
| Utilisation de l’espace |
| Bureau |
| Aménagement |
| construction partielle |
| Disponible |
| Maintenant |
2e étage, ste 220
| Taille |
| 2 939 pi² |
| Terme |
| 5 ans |
| Taux de location |
| 14,00 $ CAD/pi²/an 1,17 $ CAD/pi²/mois 41 146 $ CAD/an 3 429 $ CAD/mois |
| Utilisation de l’espace |
| Bureau |
| Aménagement |
| construction partielle |
| Disponible |
| Maintenant |
3e étage, ste 300
| Taille |
| 14 275 pi² |
| Terme |
| 1-10 ans |
| Taux de location |
| 14,00 $ CAD/pi²/an 1,17 $ CAD/pi²/mois 199 850 $ CAD/an 16 654 $ CAD/mois |
| Utilisation de l’espace |
| Bureau |
| Aménagement |
| construction partielle |
| Disponible |
| Maintenant |
4e étage, ste 401
| Taille |
| 4 160 pi² |
| Terme |
| 5 ans |
| Taux de location |
| 14,00 $ CAD/pi²/an 1,17 $ CAD/pi²/mois 58 240 $ CAD/an 4 853 $ CAD/mois |
| Utilisation de l’espace |
| Bureau |
| Aménagement |
| construction partielle |
| Disponible |
| Maintenant |
4e étage, ste 404
| Taille |
| 2 766 pi² |
| Terme |
| 5 ans |
| Taux de location |
| 14,00 $ CAD/pi²/an 1,17 $ CAD/pi²/mois 38 724 $ CAD/an 3 227 $ CAD/mois |
| Utilisation de l’espace |
| Bureau |
| Aménagement |
| construction partielle |
| Disponible |
| Maintenant |
4e étage, ste 406
| Taille |
| 1 754 pi² |
| Terme |
| 1-10 ans |
| Taux de location |
| 14,00 $ CAD/pi²/an 1,17 $ CAD/pi²/mois 24 556 $ CAD/an 2 046 $ CAD/mois |
| Utilisation de l’espace |
| Bureau |
| Aménagement |
| construction complète |
| Disponible |
| Maintenant |
5e étage, ste 501
| Taille |
| 6 714 pi² |
| Terme |
| 1 an |
| Taux de location |
| 14,00 $ CAD/pi²/an 1,17 $ CAD/pi²/mois 93 996 $ CAD/an 7 833 $ CAD/mois |
| Utilisation de l’espace |
| Bureau |
| Aménagement |
| construction partielle |
| Disponible |
| Maintenant |
5e étage, ste 503
| Taille |
| 6 812 pi² |
| Terme |
| 5 ans |
| Taux de location |
| 14,00 $ CAD/pi²/an 1,17 $ CAD/pi²/mois 95 368 $ CAD/an 7 947 $ CAD/mois |
| Utilisation de l’espace |
| Bureau |
| Aménagement |
| construction partielle |
| Disponible |
| Maintenant |
1er étage, ste 100
| Taille | 11 694 pi² |
| Terme | Négociable |
| Taux de location | 14,00 $ CAD/pi²/an |
| Utilisation de l’espace | Bureau |
| Aménagement | construction complète |
| Disponible | Maintenant |
La Suite 100 à Beaver House offre une occasion rare de louer un espace de bureau entièrement aménagé et au design avant-gardiste dans l'un des bâtiments patrimoniaux les plus riches en caractère du centre-ville d'Edmonton. S'étendant sur 11 694 pieds carrés, cette suite allie une architecture en briques et poutres apparentes à des finitions modernes et des commodités réfléchies. L'aménagement comprend 13 bureaux privés, une salle de conférence, une salle de réunion, un espace de coworking/événement, une kitchenette, un salon avec sièges en gradins, des cabines intégrées et une douche—idéal pour les entreprises recherchant un espace de travail dynamique et axé sur le bien-être. Les locataires bénéficient d'une entrée extérieure exclusive, d'une option entièrement meublée et d'un accès au salon partagé et à la salle de jeux du bâtiment. Situé sur la 103e Rue, Beaver House est à quelques pas du quartier ICE, de Rogers Place et d'un mélange vibrant de restaurants, cafés et lieux culturels. La propriété est directement connectée au réseau de passerelles d'Edmonton et se trouve à distance de marche de quatre stations de LRT, offrant un accès facile à travers la ville. Le rangement pour vélos et le stationnement sur le terrain adjacent améliorent encore la commodité pour les navetteurs. Des conditions de location flexibles à partir d'un an sont disponibles, avec des incitations clés en main complètes et un taux de location compétitif à partir de 14,00 $ par pied carré plus des coûts d'exploitation de 13,60 $ par pied carré. La Suite 100 est idéale pour les entreprises créatives, les entreprises technologiques ou les services professionnels cherchant une présence distinctive au centre-ville avec une fonctionnalité moderne.
- Le taux de location ne comprend pas les services publics, les services de bâtiment ou les dépenses immobilières.
- Entièrement construit comme Bureau standard
- 13 bureaux privés
- 1 salle de conférence
- Espace en excellent état
- Entrée extérieure exclusive disponible
- Option entièrement meublée offerte
- 13 bureaux privés plus salle de réunion
- Salon, kitchenette et douche
- À quelques pas du ICE District et du Rogers Place
- Accès direct aux stations de LRT par passerelle piétonne
2e étage, ste 200
| Taille | 3 395 pi² |
| Terme | 5 ans |
| Taux de location | 14,00 $ CAD/pi²/an |
| Utilisation de l’espace | Bureau |
| Aménagement | construction partielle |
| Disponible | Maintenant |
Nouvelle unité à louer !
- Le taux de location ne comprend pas les services publics, les services de bâtiment ou les dépenses immobilières.
- Partiellement construit comme Bureau standard
- Disposition du plan d’étage ouverte en général
- Espace en excellent état
- Peut être associé à un ou plusieurs espaces supplémentaires pour obtenir jusqu’à 6 334 pi² d’espace adjacent.
- Climatisation centrale
- Lumière naturelle
- Stals disponibles dans le lot adjacent
- Hauts plafonds
2e étage, ste 220
| Taille | 2 939 pi² |
| Terme | 5 ans |
| Taux de location | 14,00 $ CAD/pi²/an |
| Utilisation de l’espace | Bureau |
| Aménagement | construction partielle |
| Disponible | Maintenant |
Nouvelle unité à louer !
- Le taux de location ne comprend pas les services publics, les services de bâtiment ou les dépenses immobilières.
- Partiellement construit comme Bureau standard
- Disposition du plan d’étage ouverte en général
- Espace en excellent état
- Peut être associé à un ou plusieurs espaces supplémentaires pour obtenir jusqu’à 6 334 pi² d’espace adjacent.
- Climatisation centrale
- Stals disponibles dans le lot adjacent
- Hauts plafonds
3e étage, ste 300
| Taille | 14 275 pi² |
| Terme | 1-10 ans |
| Taux de location | 14,00 $ CAD/pi²/an |
| Utilisation de l’espace | Bureau |
| Aménagement | construction partielle |
| Disponible | Maintenant |
Bâtiment patrimonial de caractère avec des améliorations modernes. À quelques pas du nouveau quartier Ice d'Edmonton. Situé en face du YMCA et du campus du centre-ville de l'Université de l'Alberta. Nouvelles commodités pour les locataires, y compris : rangement pour vélos, salon pour locataires avec jeux et garde-manger de cuisine.
- Le taux de location ne comprend pas les services publics, les services de bâtiment ou les dépenses immobilières.
- Partiellement construit comme Bureau standard
- Disposition du plan d’étage ouverte en général
- Espace en excellent état
- Air central et chauffage
- Plafond exposé
- Détecteur de fumée
- Stalles disponibles dans le terrain adjacent
- Plafonds hauts
4e étage, ste 401
| Taille | 4 160 pi² |
| Terme | 5 ans |
| Taux de location | 14,00 $ CAD/pi²/an |
| Utilisation de l’espace | Bureau |
| Aménagement | construction partielle |
| Disponible | Maintenant |
Nouvelle unité à louer !
- Le taux de location ne comprend pas les services publics, les services de bâtiment ou les dépenses immobilières.
- Partiellement construit comme Bureau standard
- Disposition du plan d’étage ouverte en général
- Espace en excellent état
- Peut être associé à un ou plusieurs espaces supplémentaires pour obtenir jusqu’à 8 680 pi² d’espace adjacent.
- Climatisation centrale
- Les décrochages sont disponibles dans le lot adjacent
- Hauts plafonds
4e étage, ste 404
| Taille | 2 766 pi² |
| Terme | 5 ans |
| Taux de location | 14,00 $ CAD/pi²/an |
| Utilisation de l’espace | Bureau |
| Aménagement | construction partielle |
| Disponible | Maintenant |
Nouvelle unité à louer !
- Le taux de location ne comprend pas les services publics, les services de bâtiment ou les dépenses immobilières.
- Partiellement construit comme Bureau standard
- Disposition du plan d’étage ouverte en général
- Espace en excellent état
- Peut être associé à un ou plusieurs espaces supplémentaires pour obtenir jusqu’à 8 680 pi² d’espace adjacent.
- Climatisation centrale
- Hauts plafonds
- Accès par ascenseur
4e étage, ste 406
| Taille | 1 754 pi² |
| Terme | 1-10 ans |
| Taux de location | 14,00 $ CAD/pi²/an |
| Utilisation de l’espace | Bureau |
| Aménagement | construction complète |
| Disponible | Maintenant |
Idéalement situé sur la rue 103, à distance de marche de certains des meilleurs restaurants d'Edmonton, ICE District et du système de pédale offrant un accès intérieur facile au centre financier. Les équipements de l'immeuble des locataires comprennent un local à vélos et un salon/salle de jeux moderne et confortable avec une grande cuisine.
- Le taux de location ne comprend pas les services publics, les services de bâtiment ou les dépenses immobilières.
- Entièrement construit comme Bureau standard
- Disposition intensive du bureau
- Peut être associé à un ou plusieurs espaces supplémentaires pour obtenir jusqu’à 8 680 pi² d’espace adjacent.
- Climatisation centrale
- Les décrochages sont disponibles dans le lot adjacent
- salon confortable pour locataires/salle de jeux
- Grande cuisine
5e étage, ste 501
| Taille | 6 714 pi² |
| Terme | 1 an |
| Taux de location | 14,00 $ CAD/pi²/an |
| Utilisation de l’espace | Bureau |
| Aménagement | construction partielle |
| Disponible | Maintenant |
Idéalement situé sur la rue 103, à distance de marche de certains des meilleurs restaurants d'Edmonton, ICE District et du système de pédale offrant un accès intérieur facile au centre financier. Les équipements de l'immeuble des locataires comprennent un local à vélos et un salon/salle de jeux moderne et confortable avec une grande cuisine.
- Le taux de location ne comprend pas les services publics, les services de bâtiment ou les dépenses immobilières.
- Partiellement construit comme Bureau de services financiers
- Disposition du plan d’étage ouverte en général
- Peut être associé à un ou plusieurs espaces supplémentaires pour obtenir jusqu’à 13 526 pi² d’espace adjacent.
- Climatisation centrale
- Grande cuisine
- Espace salon
- entreposage de vélos
5e étage, ste 503
| Taille | 6 812 pi² |
| Terme | 5 ans |
| Taux de location | 14,00 $ CAD/pi²/an |
| Utilisation de l’espace | Bureau |
| Aménagement | construction partielle |
| Disponible | Maintenant |
Idéalement situé sur la rue 103, à distance de marche de certains des meilleurs restaurants d'Edmonton, ICE District et du système de pédale offrant un accès intérieur facile au centre financier. Les équipements de l'immeuble des locataires comprennent un local à vélos et un salon/salle de jeux moderne et confortable avec une grande cuisine.
- Le taux de location ne comprend pas les services publics, les services de bâtiment ou les dépenses immobilières.
- Partiellement construit comme Bureau standard
- Disposition du plan d’étage ouverte en général
- Espace en excellent état
- Peut être associé à un ou plusieurs espaces supplémentaires pour obtenir jusqu’à 13 526 pi² d’espace adjacent.
- Climatisation centrale
- entreposage de vélos
- Salon des locataires/salle de jeux moderne et confortable
- grande cuisine
Aperçu de la propriété
Idéalement situé sur la 103 Street, à distance de marche de certains des meilleurs restaurants d'Edmonton, du district ICE et du système de trottoir offrant un accès facile à l'intérieur du centre financier. Les commodités de l'immeuble locataire comprennent un local à vélos et un salon/salle de jeux moderne et confortable avec grande cuisine.
- Ligne d'autobus
- Métro
- Affichage
Faits sur la propriété
Présenté par
Beaver House | 10158-10160 103rd St NW
Hmm, il semble y avoir eu une erreur lors de l’envoi de votre message. Veuillez réessayer.
Merci! Votre message a été envoyé.











