Votre courriel a été envoyé.
London Station 10348-10362 King George Blvd 3 645 pi² d'espace disponible • Bureau/Commerce de détail • Surrey, BC V3T 2W5



Certaines informations ont été traduites automatiquement.
Faits saillants
- Situé sur l'esplanade de la gare de London avec une forte circulation quotidienne
- Entouré d'une forte densité de croissance résidentielle et commerciale
- Disposition flexible avec bureaux, salles de classe et espaces de soutien
- Unité d'angle offrant une excellente visibilité et un excellent potentiel de signalisation
- À quelques pas du SkyTrain King George et des principales lignes d'autobus
Disponibilité de l’espace (1)
Afficher les taux de location en
- Espace
- Taille
- Terme
- Taux de location
- Type de loyer
| Espace | Taille | Terme | Taux de location | Type de loyer | ||
| 1er étage, ste 105 | 3 645 pi² | Négociable | Sur demande Sur demande Sur demande Sur demande | À déterminer |
1er étage, ste 105
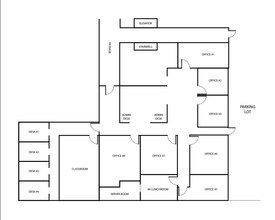
À l'intérieur, l'espace comprend plusieurs bureaux, une salle de classe, une salle de repas, une salle de serveurs et des bureaux administratifs, offrant ainsi une flexibilité pour une gamme de configurations de locataires. L'aménagement répond à la fois aux besoins des clients et aux besoins opérationnels, ce qui le rend idéal pour les entreprises qui cherchent à s'établir ou à prendre de l'expansion dans l'un des carrefours urbains à la croissance la plus rapide de la Colombie-Britannique.
- Entièrement construit comme Bureau standard
- Disposition du plan d’étage ouverte
- Convient pour 10 à 30 personnes
- 8 bureaux privés
- Plan ouvert
- Entouré de commerces de détail populaires.
- Espace à concept ouvert.
Types de loyers
Le type et le montant du loyer que le locataire (preneur) est tenu de payer au propriétaire (bailleur) sur la durée du bail sont négociés avant la signature du bail par les deux parties. Le type de loyer varie selon les services fournis. Par exemple, le prix d’un loyer hypernet est habituellement inférieur à celui d’un bail à service complet puisque le locataire est tenu d’assumer des dépenses additionnelles par rapport au loyer de base. Contactez le courtier inscripteur pour tout connaître sur les frais connexes et additionnels associés à chaque type de loyer.
1. Service complet: Un taux de location qui comprend des services standards liés à l’immeuble fournis par le propriétaire dans le cadre d’une location annuelle de base.
2. Loyer supernet: Le locataire paie seulement deux des frais de l’immeuble. Le propriétaire et le locataire déterminent ces frais spécifiques avant la signature du bail.
3. Loyer hypernet: Un bail en vertu duquel le locataire est responsable de tous les frais liés à sa part proportionnelle d’occupation de l’immeuble.
4. Brut modifié: Le loyer brut modifié désigne un type général de taux de location dans lequel le locataire est habituellement responsable de sa part proportionnelle d’un ou de plusieurs frais. C’est le propriétaire qui paie les frais restants. Considérez les structures tarifaires courantes suivantes applicables aux loyers bruts modifiés: 4. Plus les services: Un type de bail brut modifié suivant lequel le locataire est responsable de sa part proportionnelle des coûts des services publics, en plus du loyer. 4. Plus le nettoyage: Un type de bail brut modifié suivant lequel le locataire est responsable de sa part proportionnelle des coûts de nettoyage, en plus du loyer. 4. Plus l'électricité: Un type de bail brut modifié suivant lequel le locataire est responsable de sa part proportionnelle des coûts d’électricité, en plus du loyer. 4. Plus l’électricité et le nettoyage: Un type de bail brut modifié dans lequel le locataire est responsable de sa part proportionnelle des coûts d’électricité et de nettoyage, en plus du loyer. 4. Plus les services publics et le nettoyage: Un type de bail brut modifié dans lequel le locataire est responsable de sa part proportionnelle des coûts des services publics et de nettoyage, en plus du loyer. 4. Bail industriel brut: Un type de bail brut modifié dans lequel le locataire paie un ou plusieurs des frais, en plus du loyer. Le propriétaire et le locataire déterminent ces frais spécifiques avant la signature du bail.
5. L’électricité est à la charge du locataire: Le propriétaire paie pour tous les services et le locataire est responsable de sa propre utilisation de l’éclairage et des prises électriques dans l’espace qu’il occupe.
6. Négociable ou sur demande: Cette option est utilisée lorsque le contact de location ne précise pas le type de loyer ou de service.
7. À déterminer: À déterminer ; utilisé pour les immeubles dont le type de services ou de loyer n’est pas connu, souvent quand l’immeuble n’est pas encore construit.
Sélectionner des locataires à London Station
- Locataire
- Description
- Emplacements CAN
- Portée
- Anderson College
- -
- 1
- -
- Canadian Tourism College-Surrey Campus
- Autres services
- 12
- Local
- London Drugs
- Pharmacie
- 82
- National
- North Surrey Public Health Unit
- Soins de santé
- 66
- Régional
- Surrey Chiropractic, Physiotherapy, & Massage Clin
- Soins de santé
- 1
- Local
- WorkBC
- Autre bureau
- 20
- Local
| Locataire | Description | Emplacements CAN | Portée |
| Anderson College | - | 1 | - |
| Canadian Tourism College-Surrey Campus | Autres services | 12 | Local |
| London Drugs | Pharmacie | 82 | National |
| North Surrey Public Health Unit | Soins de santé | 66 | Régional |
| Surrey Chiropractic, Physiotherapy, & Massage Clin | Soins de santé | 1 | Local |
| WorkBC | Autre bureau | 20 | Local |
Faits sur la propriété
| Superficie totale disponible | 3 645 pi² | Superficie commerciale brute | 98 211 pi² |
| Type de propriété | Commerce de détail | Année de construction | 1974 |
| Sous-type de propriété | Bien à usage mixte | Ratio de stationnement | 0,66/1 000 pi² |
| Superficie totale disponible | 3 645 pi² |
| Type de propriété | Commerce de détail |
| Sous-type de propriété | Bien à usage mixte |
| Superficie commerciale brute | 98 211 pi² |
| Année de construction | 1974 |
| Ratio de stationnement | 0,66/1 000 pi² |
À propos de la propriété
Situé au cœur du centre-ville en pleine transformation de Surrey, le 10362 King George Boulevard propose une unité commerciale d'angle au rez-de-chaussée dans la réputée plaza London Station. Cet espace à concept ouvert de 3 645 pi² est idéal pour des usages commerciaux, de services ou professionnels recherchant une grande visibilité et une forte exposition au trafic quotidien le long de l’un des corridors les plus fréquentés de la région métropolitaine de Vancouver. La propriété bénéficie d’un potentiel exceptionnel pour l’affichage publicitaire et est entourée de développements résidentiels et commerciaux denses, contribuant à une clientèle dynamique. Avec 43 875 véhicules passant quotidiennement et une population de plus de 122 000 personnes dans un rayon de 3 km, l’emplacement offre une visibilité et une accessibilité inégalées. La connectivité au transport en commun est un atout majeur, grâce à la proximité de la station de SkyTrain King George et de plusieurs lignes d’autobus, augmentant ainsi le flux piétonnier et la commodité pour les navetteurs.
- Accès 24 heures
- Ligne d'autobus
- Accès contrôlé
- Enseigne sur pylône
- Restaurant
- Système de sécurité
- Affichage
- CVCA contrôlé par le locataire
- Accessible aux fauteuils roulants
- Affichage sur monument
- Climatisation
- Détecteur de fumée
- Agents de sécurité sur place
Principaux détaillants à proximité
Présenté par
London Station | 10348-10362 King George Blvd
Hmm, il semble y avoir eu une erreur lors de l’envoi de votre message. Veuillez réessayer.
Merci! Votre message a été envoyé.



