Votre courriel a été envoyé.
127 Beechwood Ave 900–1 800 pi² d'espace disponible • Commerce de détail • Ottawa, ON K1M 1L5



Certaines informations ont été traduites automatiquement.
Faits saillants
- Bâtiment commercial/de détail de deux étages d’environ 1 800 pieds carrés, avec sous-sol complet et possibilité d’aménagement d’une terrasse.
- Stationnement sur place pour 8 à 10 véhicules, avec du stationnement supplémentaire disponible dans la rue.
- Emplacement de premier choix à New Edinburgh, avec une façade très visible sur l’avenue Beechwood et une accessibilité exceptionnelle.
- Disponibilité immédiate pour location, offrant un espace flexible dans un quartier dynamique riche en services.
Disponibilité des espaces (2)
Afficher les taux de location en
- Espace
- Taille
- Terme
- Taux de location
- Type de loyer
| Espace | Taille | Terme | Taux de location | Type de loyer | ||
| 1er étage | 900 pi² | Négociable | 23,89 $ CAD/pi²/an 1,99 $ CAD/pi²/mois 21 501 $ CAD/an 1 792 $ CAD/mois | Loyer hypernet | ||
| 1er étage | 900 pi² | Négociable | 23,89 $ CAD/pi²/an 1,99 $ CAD/pi²/mois 21 501 $ CAD/an 1 792 $ CAD/mois | Loyer hypernet |
1er étage
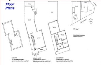
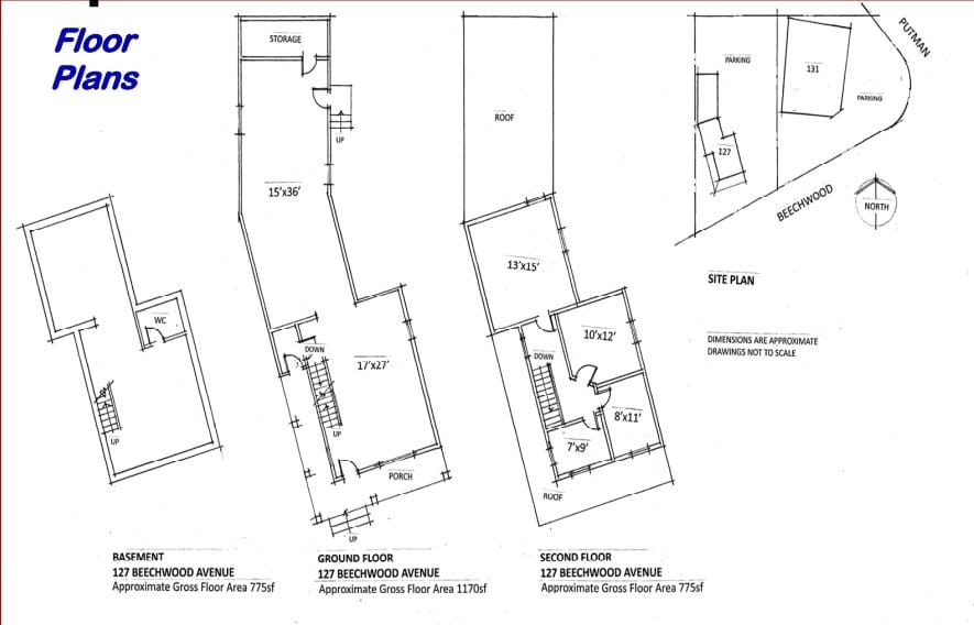
Le 127, avenue Beechwood, Ottawa (Ontario) est offert en location comme immeuble commercial/de détail de deux étages, livré libre de toute occupation, offrant environ 1 800 pieds carrés plus un sous-sol complet et un potentiel d’aire de terrasse, sur un terrain de 6 312 pieds carrés avec stationnement sur place pour 8 à 10 véhicules. Situé dans le quartier dynamique de New Edinburgh, avec une excellente visibilité sur l’avenue Beechwood, l’immeuble est offert à un loyer net minimal de 65 000 $ par année, plus loyer additionnel, et est disponible immédiatement pour des locataires à la recherche d’un emplacement de choix, facilement accessible et entouré de nombreux services.
- Le taux de location ne comprend pas les services publics, les services de bâtiment ou les dépenses immobilières.
- Entièrement construit comme Espace de commerce de détail standard
- L’espace est une parcelle de terrain de cette propriété
- Espace en excellent état
- Peut être associé à un ou plusieurs espaces supplémentaires pour obtenir jusqu’à 1 800 pi² d’espace adjacent.
1er étage
Le 127, avenue Beechwood, Ottawa (Ontario), est offert en location comme immeuble commercial/de détail de deux étages, libre de toute occupation, offrant environ 1 800 pieds carrés, plus un sous-sol complet et un potentiel d’aire de terrasse, sur un terrain de 6 312 pieds carrés avec stationnement sur place pour 8 à 10 véhicules. Situé dans le quartier dynamique de New Edinburgh, avec une excellente visibilité sur l’avenue Beechwood, l’immeuble est offert à un loyer net minimal de 65 000 $ par année, plus loyer additionnel, et est disponible immédiatement pour des locataires à la recherche d’un emplacement de choix, facilement accessible et entouré de nombreux services.
- Le taux de location ne comprend pas les services publics, les services de bâtiment ou les dépenses immobilières.
- Entièrement construit comme Espace de commerce de détail standard
- L’espace est une parcelle de terrain de cette propriété
- Espace en excellent état
- Peut être associé à un ou plusieurs espaces supplémentaires pour obtenir jusqu’à 1 800 pi² d’espace adjacent.
Types de loyers
Le type et le montant du loyer que le locataire (preneur) est tenu de payer au propriétaire (bailleur) sur la durée du bail sont négociés avant la signature du bail par les deux parties. Le type de loyer varie selon les services fournis. Par exemple, le prix d’un loyer hypernet est habituellement inférieur à celui d’un bail à service complet puisque le locataire est tenu d’assumer des dépenses additionnelles par rapport au loyer de base. Contactez le courtier inscripteur pour tout connaître sur les frais connexes et additionnels associés à chaque type de loyer.
1. Service complet: Un taux de location qui comprend des services standards liés à l’immeuble fournis par le propriétaire dans le cadre d’une location annuelle de base.
2. Loyer supernet: Le locataire paie seulement deux des frais de l’immeuble. Le propriétaire et le locataire déterminent ces frais spécifiques avant la signature du bail.
3. Loyer hypernet: Un bail en vertu duquel le locataire est responsable de tous les frais liés à sa part proportionnelle d’occupation de l’immeuble.
4. Brut modifié: Le loyer brut modifié désigne un type général de taux de location dans lequel le locataire est habituellement responsable de sa part proportionnelle d’un ou de plusieurs frais. C’est le propriétaire qui paie les frais restants. Considérez les structures tarifaires courantes suivantes applicables aux loyers bruts modifiés: 4. Plus les services: Un type de bail brut modifié suivant lequel le locataire est responsable de sa part proportionnelle des coûts des services publics, en plus du loyer. 4. Plus le nettoyage: Un type de bail brut modifié suivant lequel le locataire est responsable de sa part proportionnelle des coûts de nettoyage, en plus du loyer. 4. Plus l'électricité: Un type de bail brut modifié suivant lequel le locataire est responsable de sa part proportionnelle des coûts d’électricité, en plus du loyer. 4. Plus l’électricité et le nettoyage: Un type de bail brut modifié dans lequel le locataire est responsable de sa part proportionnelle des coûts d’électricité et de nettoyage, en plus du loyer. 4. Plus les services publics et le nettoyage: Un type de bail brut modifié dans lequel le locataire est responsable de sa part proportionnelle des coûts des services publics et de nettoyage, en plus du loyer. 4. Bail industriel brut: Un type de bail brut modifié dans lequel le locataire paie un ou plusieurs des frais, en plus du loyer. Le propriétaire et le locataire déterminent ces frais spécifiques avant la signature du bail.
5. L’électricité est à la charge du locataire: Le propriétaire paie pour tous les services et le locataire est responsable de sa propre utilisation de l’éclairage et des prises électriques dans l’espace qu’il occupe.
6. Négociable ou sur demande: Cette option est utilisée lorsque le contact de location ne précise pas le type de loyer ou de service.
7. À déterminer: À déterminer ; utilisé pour les immeubles dont le type de services ou de loyer n’est pas connu, souvent quand l’immeuble n’est pas encore construit.
Sélectionner des locataires à 127 Beechwood Ave, Ottawa, ON K1M 1L5
- Locataire
- Description
- Emplacements CAN
- Portée
- Muckleston & Brockwell - A Fine Butchery
- -
- 1
- -
| Locataire | Description | Emplacements CAN | Portée |
| Muckleston & Brockwell - A Fine Butchery | - | 1 | - |
Faits sur la propriété
| Superficie totale disponible | 1 800 pi² | Superficie commerciale brute | 1 800 pi² |
| Type de propriété | Commerce de détail | Année de construction | 1912 |
| Sous-type de propriété | Boutique | Ratio de stationnement | 6,11/1 000 pi² |
| Superficie totale disponible | 1 800 pi² |
| Type de propriété | Commerce de détail |
| Sous-type de propriété | Boutique |
| Superficie commerciale brute | 1 800 pi² |
| Année de construction | 1912 |
| Ratio de stationnement | 6,11/1 000 pi² |
À propos de la propriété
Le 127 Avenue Beechwood est un bâtiment commercial/de détail à deux étages situé dans le quartier prisé de New Edinburgh, juste à l'est du centre-ville d'Ottawa. La propriété offre environ 1 800 pieds carrés d'espace, plus un sous-sol complet et une zone de patio potentielle, située sur un terrain rectangulaire de 6 312 pieds carrés avec une profondeur de 100,38 pieds. Elle dispose d'une façade importante sur l'avenue Beechwood, d'un stationnement sur place pour 8 à 10 véhicules, et d'une excellente accessibilité en voiture, en bus ou à pied. Le site est entouré d'aménagements locaux, de restaurants et de boutiques, ce qui en fait un emplacement idéal pour une variété d'usages commerciaux.
- Ligne d'autobus
- Enseigne sur pylône
- Affichage
- Intersection avec signalisation
Principaux détaillants à proximité
Présenté par
127 Beechwood Ave
Hmm, il semble y avoir eu une erreur lors de l’envoi de votre message. Veuillez réessayer.
Merci! Votre message a été envoyé.


