Votre courriel a été envoyé.
434-438 Rue Sainte-Hélène Unité de condo • Bureau • 3 691 pi² • À vendre 1 300 000 $ CAD • Montréal, QC H2Y 2K7



Certaines informations ont été traduites automatiquement.
Faits saillants de l'investissement
- Situé au cœur du Vieux-Montréal historique
- Architecture historique combinée à un design intérieur moderne et à des commodités contemporaines
Résumé de l'annonce
Architecture historique. Situé au cœur du Vieux-Montréal, à proximité de tous les services.
1 Unité disponible
Unité 434
| Taille de l’unité | 3 691 pi² | Utilisation du condo | Bureau |
| Prix | 1 300 000 $ CAD | Type de vente | Investissement |
| Prix par pi² | 352,21 $ CAD | ID/Numéro de lot | 1179824, 1285535 |
| Taille de l’unité | 3 691 pi² |
| Prix | 1 300 000 $ CAD |
| Prix par pi² | 352,21 $ CAD |
| Utilisation du condo | Bureau |
| Type de vente | Investissement |
| ID/Numéro de lot | 1179824, 1285535 |
Description
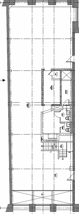
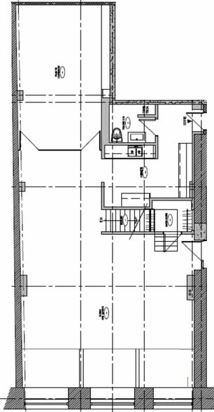
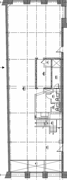
Condo commercial récemment rénové. Les installations offrent à la fois fonctionnalité et confort pour ceux qui souhaitent avoir un espace de qualité supérieure. Le sous-sol propose une kitchenette, une salle de conférence vitrée, un espace ouvert et des salles de bains, tandis que le rez-de-chaussée comprend un grand espace ouvert pour les postes de travail, la papeterie et les salles de bains.
Notes sur la vente
Occasion unique au cœur du Vieux-Montréal historique. Condo commercial de 3 691 pi² à vendre.
Floor Plan
Floor Plan
Interior Photo
Interior Photo
Interior Photo
Interior Photo
Interior Photo
Faits sur la propriété
| Taille totale du bâtiment | 17 560 pi² | Superficie de plancher typique | 3 890 pi² |
| Type de propriété | Bureau (Condo) | Année de construction | 1860 |
| Classe d’immeuble | B | Taille du lot | 0,11 AC |
| Planchers | 4 | ||
| Zonage | M.3C - Commercial | ||
| Taille totale du bâtiment | 17 560 pi² |
| Type de propriété | Bureau (Condo) |
| Classe d’immeuble | B |
| Planchers | 4 |
| Superficie de plancher typique | 3 890 pi² |
| Année de construction | 1860 |
| Taille du lot | 0,11 AC |
| Zonage | M.3C - Commercial |
Commodités
- Banque
- Métro
Présenté par
434-438 Rue Sainte-Hélène
Hmm, il semble y avoir eu une erreur lors de l’envoi de votre message. Veuillez réessayer.
Merci! Votre message a été envoyé.

